Vuokrataan toimistotilat - Helsinki
Ruoholahdenkatu 8, Kamppi, 00180 Helsinki #10831563
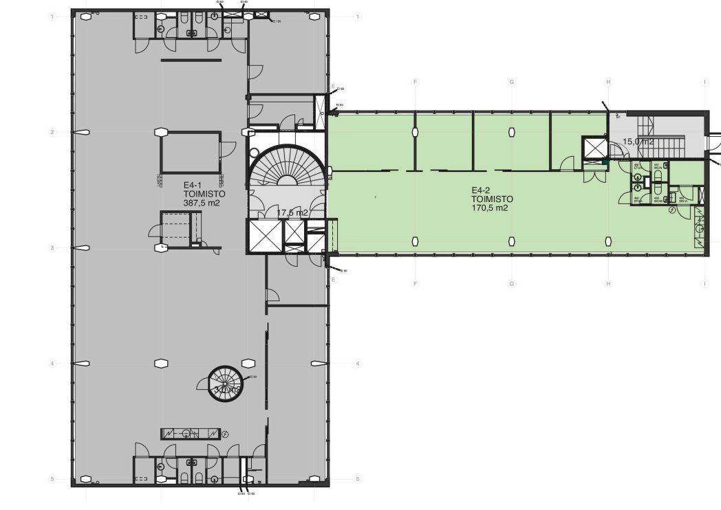
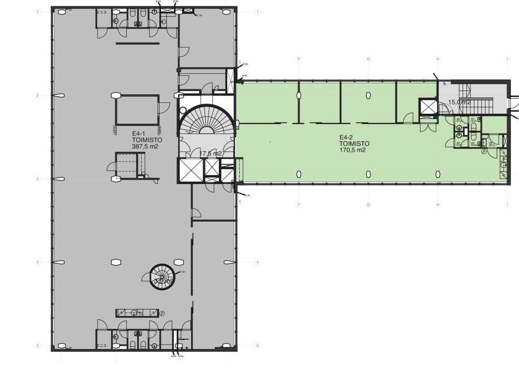
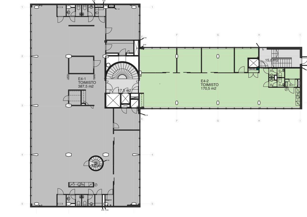
Vuokrataan tasokasta toimistotilaa Helsingin Kampista. Tila käsittää mm. keittiön, neuvottelutilan, sosiaalitilat ja hyvän valaistuksen. Julkisilla, sekä autolla helppo saavutettavuus.
Vuokraan lisätään alv + kulut
Tiesitkö, että tilan hakijalle palvelumme on maksuton?
Lisätiedot ja yhteydenotto:
www.blanctoimitilat.fi
Harri Laisto, LKV, Kaupanvahvistaja
+358 40 536 5590
harri.laisto@blanckiinteisto.com
Osoite
Ruoholahdenkatu 8, 00180 Helsinki
Tilatyyppi
Toimistotilaa
170 m2
Vapautuu
Kysy
Kerros
2
Ota yhteyttä

Blanc Toimitilat
Harri Laisto
Toimitila-asiantuntija, CEO, Kaupanvahvistaja, LKV
Näytä puhelinnumero
+358405365590
Pyydä lisätietoa