Myydään toimistotilat - Kaarina
Konemestarinkatu 6, Ladjakoski, 20780 Kaarina #10831517
Hyväkuntoinen toimistokiinteistö Kaarinassa Krossin vilkkaalla liike- ja teollisuusalueella.
Kiinteistö on omalla 2371m² kokoisella tontilla ja rakennusoikeutta on vielä käyttämättä noin 750m².
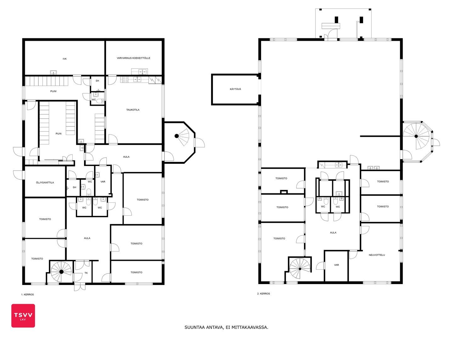
1. kerroksesta löytyy kolme sisäänkäyntiä, viisi toimistohuonetta, neljä wc:tä, kaksi suihkua ja kaksi pukuhuonetta, taukotila jonka yhteydessä keittiö, IV-huone ja öljysäiliöhuone.
2. kerroksessa on myös viisi toimistohuonetta, kaksi wc:tä, varastotila, pieni keittiö sekä iso avotila josta on kulku kylmää yhdyskäytävää pitkin viereiseen halliin ja sisäänkäynti takapihan lastauslaiturille.
Esittelyt ja lisätiedot:
Jere Reijonen, LKV LVV
045 114 4489
jere.reijonen@tsvv.fi
Turun Seudun Vuokravälitys Oy
Jere Reijonen
Kiinteistönvälittäjä LKV, LVV
Näytä puhelinnumero
+358451144489
