Vuokrataan toimistotilat - Helsinki
Fredrikinkatu 48, Kamppi, keskusta, 00100 Helsinki #10831489
Rakennuksen kuvaus:
Autotalo on suosittu toimistokohde keskellä Kamppia. Autotalo koostuu neljästä tornista, joissa moderneja, viihtyisiä toimistoja kivoin näkymin. Kohde on saneerattu ja talotekniikka ja tilojen pinnat uusittiin, sisäilmaa ja energiatehokkuutta parannettiin sekä samalla uusittiin kohteen pääaula Salomonkadulla. Näyttävän aulan ohessa on useita ravintoloita. Autotalo sijaitsee vastapäätä metroasemaa ja Kampin bussiterminaalia ja yhteydet ovat erityisen hyvät. Kohteella on oma autohalli ja pyöräparkki.
Tilan kuvaus:
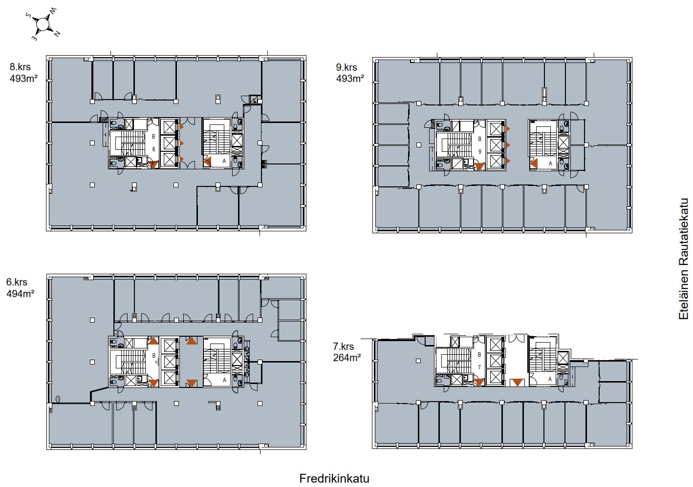
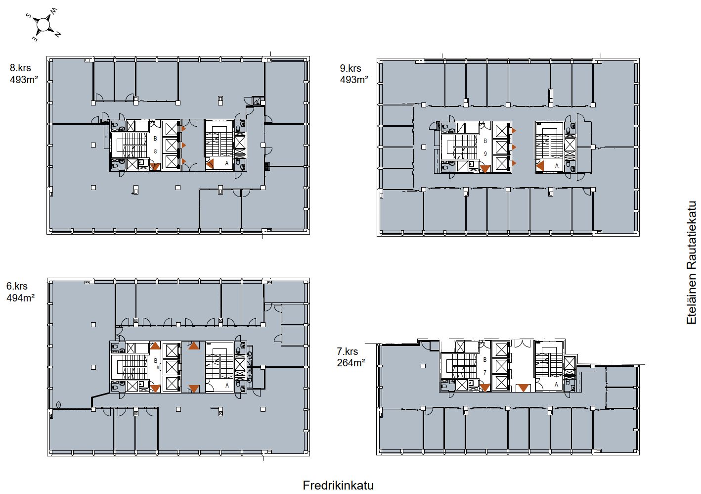
Hienosti remontoitu toimistokokonaisuus vuokrattavissa Autotalossa, josta upeat näkymät eri puolelle Kamppia ja muuta kantakaupunkia. Tilassa monipuolisesti erikokoisia työ- ja neuvotteluhuoneita sekä avotilaa. Kahdeksannessa kerroksessa on vieraiden vastaanotto ja iso, tyylikäästi toteutettu lounge keittiö. Muuttovalmis kokonaisuus! Tila jakaantuu kerroksiin seuraavasti: 7. krs 264 m2, 8. krs 493 m2, 9. krs 493 m2.
Kerros: 7-9
