Vuokrataan toimistotilat - Helsinki
Siltasaarenkatu 12, Hakaniemi, 00530 Helsinki #10831475
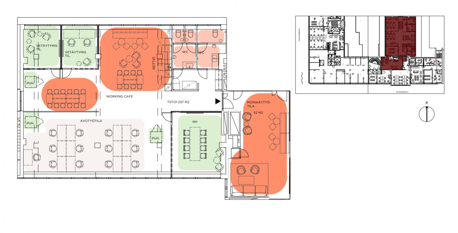
Seitsemännen kerroksen muuttovalmista toimistotilaa hakaniemen ytimestä.
Osoite
Siltasaarenkatu 12, 00530 Helsinki
Tilatyyppi
Toimistotilaa
261 m2
Kiinteistö
Siltasaari 12:sta kiinteistössä on tarjolla seitsemännen kerroksen juuri remontoitua toimistotilaa 261m2. Tilat sisältävät monikäyttöisiä neuvottelu ja/tai vetäytymistiloja sekä avotilaa. Käytössä on myös tyylikäs keittiö / working lounge. Tilat on toteutettu korkealuokkaisin materiaalein. Vuokralaisella on myös käytössään yhteiskäyttöinen aulatila viereisen vuokralaisen kanssa.
Kohteeseen on helppoa saapua loistavien kulkuyhteyksien ansiosta. Kiinteistön välittömästä läheisyydestä löytyy niin bussi-, raitiovaunu- kuin metropysäkit, joka tekee saapumisesta kohteelle erittäin helppoa. Päärautatieasemalle on matkaa vain 1,3 kilometriä. Omalla pyörällä saapuvat kulkevat kätevästi tänne alueen sujuvia pyöräilyteitä pitkin. Omalla autolla saapuvilla on mahdollisuus vuokrata pysäköinti tilaa kohteen parkkihallista.
Soita ja kysy lisää! Me MAP Tilat Oy:ssä autamme mielellämme yritystänne löytämään uudet juuri teidän tarpeisiinne sopivat toimitilat. Palvelumme on tilanhakijalle maksutonta.
Kohteeseen on helppoa saapua loistavien kulkuyhteyksien ansiosta. Kiinteistön välittömästä läheisyydestä löytyy niin bussi-, raitiovaunu- kuin metropysäkit, joka tekee saapumisesta kohteelle erittäin helppoa. Päärautatieasemalle on matkaa vain 1,3 kilometriä. Omalla pyörällä saapuvat kulkevat kätevästi tänne alueen sujuvia pyöräilyteitä pitkin. Omalla autolla saapuvilla on mahdollisuus vuokrata pysäköinti tilaa kohteen parkkihallista.
Soita ja kysy lisää! Me MAP Tilat Oy:ssä autamme mielellämme yritystänne löytämään uudet juuri teidän tarpeisiinne sopivat toimitilat. Palvelumme on tilanhakijalle maksutonta.
Pysäköinti
Kohteen lähialueella kadunvarsipysäköintiä. Lisäksi kohteessa oma pysäköintihalli.
Palvelut
Kiinteistöstä ja sen välittömästä läheisyydestä löytyy useita kahviloita, ravintoloita ja päivittäistavarakauppa. Myös Hakaniemen vasta remontoitu kauppahalli on aivan kohteen vieressä. Myös vuokrattavia neuvottelu ja tapahtumatiloja löytyy kiinteistöstä.
Vapautuu
Heti
Kerros
7
Ota yhteyttä
MAP Tilat Oy
Mika Hermaala
mika.hermaala@maptilat.fi
Näytä puhelinnumero
040 192 1313
Energiakuja 3, 00180 Helsinki
Maarit Helander
maarit.helander@maptilat.fi
Näytä puhelinnumero
044 593 8661
Pyydä lisätietoa
