Vuokrataan toimistotilat - Helsinki
Siltasaarenkatu 12, Hakaniemi, 00530 Helsinki #10831474
Upeaa kolmannen kerroksen muuttovalmista toimistotilaa vuokrattavissa Hakaniemen parhaalta paikalta Hakaniementorin laidalla. Näkymät Hakaniemen torille.
Osoite
Siltasaarenkatu 12, 00530 Helsinki
Tilatyyppi
Toimistotilaa
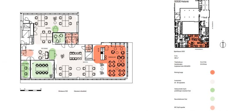
296 m2
Kiinteistö
Kiinteistössä on nyt tarjolla 296 m2 kokoinen toimistotila joka on valmiiksi saneerattu korkeaa laatutasoa ja ympäristö huomioiden. Tilat on toteutettu kontrastisella tyylillä joka sopii alueen urbaaniin kaupunkielämään. Tilassa on kolme vetäytymistilaa/neuvotteluhuonetta, monikäyttötilaa, keittiö-lounge/working-cafe, kaksi wc:tä sekä siivouskomero. Näkymät tilasta avautuvat hakaniementorille.
Kohteeseen on helppoa saapua loistavien kulkuyhteyksien ansiosta. Kiinteistön välittömästä läheisyydestä löytyy niin bussi-, raitiovaunu- kuin metropysäkit, joka tekee saapumisesta kohteelle erittäin helppoa. Päärautatieasemalle on matkaa vain 1,3 kilometriä. Omalla pyörällä saapuvat kulkevat kätevästi tänne alueen sujuvia pyöräilyteitä pitkin. Omalla autolla saapuvilla on mahdollisuus vuokrata pysäköinti tilaa kohteen parkkihallista.
Soita ja kysy lisää! Me MAP Tilat Oy:ssä autamme mielellämme yritystänne löytämään uudet juuri teidän tarpeisiinne sopivat toimitilat. Palvelumme on tilanhakijalle maksutonta.
Kohteeseen on helppoa saapua loistavien kulkuyhteyksien ansiosta. Kiinteistön välittömästä läheisyydestä löytyy niin bussi-, raitiovaunu- kuin metropysäkit, joka tekee saapumisesta kohteelle erittäin helppoa. Päärautatieasemalle on matkaa vain 1,3 kilometriä. Omalla pyörällä saapuvat kulkevat kätevästi tänne alueen sujuvia pyöräilyteitä pitkin. Omalla autolla saapuvilla on mahdollisuus vuokrata pysäköinti tilaa kohteen parkkihallista.
Soita ja kysy lisää! Me MAP Tilat Oy:ssä autamme mielellämme yritystänne löytämään uudet juuri teidän tarpeisiinne sopivat toimitilat. Palvelumme on tilanhakijalle maksutonta.
Pysäköinti
Kohteen lähialueella kadunvarsipysäköintiä. Lisäksi kohteessa oma pysäköintihalli.
Palvelut
Kiinteistöstä ja sen välittömästä läheisyydestä löytyy useita kahviloita, ravintoloita ja päivittäistavarakauppa. Myös Hakaniemen vasta remontoitu kauppahalli on aivan kohteen vieressä. Myös vuokrattavia neuvottelu ja tapahtumatiloja löytyy kiinteistöstä.
Vapautuu
Heti
Kerros
3
Ota yhteyttä
MAP Tilat Oy
Mika Hermaala
mika.hermaala@maptilat.fi
Näytä puhelinnumero
040 192 1313
Energiakuja 3, 00180 Helsinki
Maarit Helander
maarit.helander@maptilat.fi
Näytä puhelinnumero
044 593 8661
Pyydä lisätietoa
