Vuokrataan varastotilat - Helsinki
Valokaari 8, Suutarila, 00750 Helsinki #10831390
Tehokasta varastotilaa Suutarilasta heti vapaana!
Osoite
Valokaari 8, 00750 Helsinki
Tilatyyppi
Varastotilaa
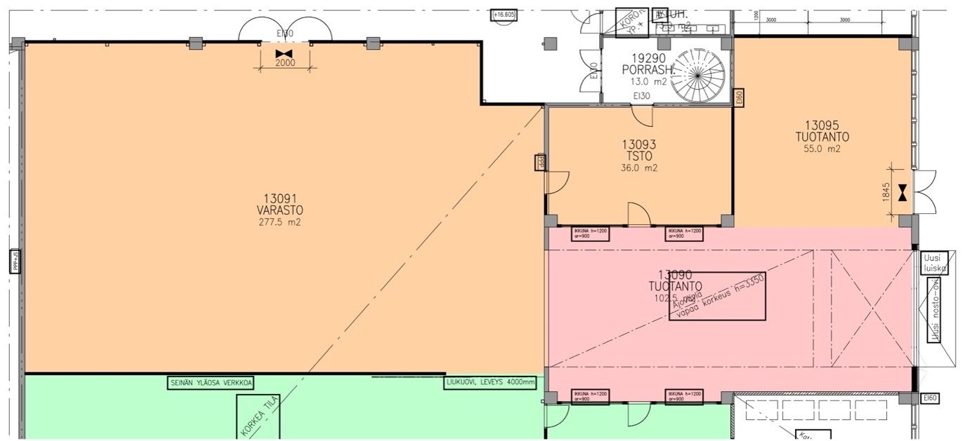
451 m2
Kiinteistö
Vuokrattavana tehokas varastotila, jossa on naapurin kanssa jaettu maantason nosto-ovi sujuvaan tavaraliikenteeseen. Tilassa on valmiina oma pieni toimistotila. Tilan korkeus on noin 7 m.
Soveltuu monenlaiseen varastointiin ja kevyeen toimistokäyttöön.
Soveltuu monenlaiseen varastointiin ja kevyeen toimistokäyttöön.
Sijainti
Kohde sijaitsee aivan Kehä III:n vieressä ja kohteella on valomainospyloni Kehä III:n näkyvyydellä.
Ympäristö
Lähialueella on mm. monenlaisia teknisen tukkukaupan toimijoita.
Pysäköinti
Asfaltoidulla piha-alueella on parkkitilaa.
Palvelut
Kiinteistössä on lounasravintola, lisäksi lähialueelta löytyy mm. ruokakauppa, huoltoasema, kuntosali ja muita lounasravintoloita.
Kulkuyhteydet
Autolla on helppo saapua kohteelle Kehä III:lta muutamassa minuutissa. Puistolan juna-asemalle on matkaa n. 1,7 km, Kehä III:n bussipysäkille noin 900 m ja läheiselle bussipysäkille noin 650 m.
Muuta
Kysy lisätietoja ja sovi esittely. Tämä tila tarjoaa toimivan ratkaisun varastoinnin ja kevyen toimistotyön yhdistämiseen. Tila on vapaana, joten pääset muuttamaan nopeasti!
Vapautuu
Heti
Katutasossa
Ota yhteyttä
MAP Tilat Oy
Maarit Helander
Näytä puhelinnumero
044 593 8661
Energiakuja 3, 00180 Helsinki
Mika Hermaala
Näytä puhelinnumero
040 192 1313
Pyydä lisätietoa
