Vuokrataan toimistotilat - Espoo
Tekniikantie 4, Otaniemi, 02150 Espoo #10831375
Viihtyisää ja kustannustehokasta toimistotilaa Espoon Otaniemestä
Osoite
Tekniikantie 4, 02150 Espoo
Tilatyyppi
Toimistotilaa
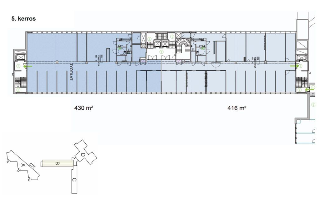
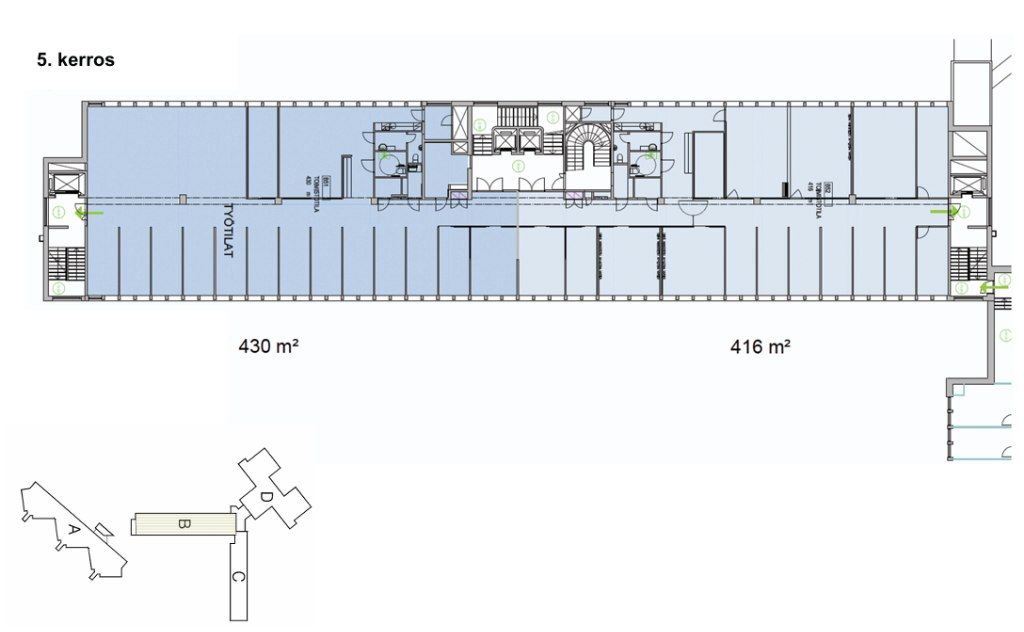
416 m2
Pysäköinti
Kyllä
Muuta
Vuokrataan valoisa 416 m2 uudenveroinen toimistotila Espoon Otaniemestä, josta on mahdollista räätälöidä upeat toimitilat juuri teidän yrityksenne tarpeisiin. Tilan pohja ja viimeistely suunnitellaan yhdessä vuokralaisen kanssa!
Kuvat ovat esimerkkikuvia asiakkaille toteutetuista ratkaisuista.
Aallonharja-kiinteistö on juuri uudistettu. Viihtyisissä rakennuksissa on kaikki tarvittavat palvelut, kuten aulapalvelu, neuvotteluhuoneet, kuntosali, edustustilat jne. Kiinteistön vetonaula on A-talon erittäin suosittu Waves by Dylan -lounasravintola. D-talon kahvila tarjoaa tuoreita leivonnaisia, aamiaista ja välipaloja.
Kiinteistön Tekniikantie 4/Aallonharjan sijainti on mitä parhain aivan Kehä I:n vieressä, ja Aaltoyliopiston metroasema sekä raidejokeri ovat kävelymatkan päässä. Autopaikkoja löytyy runsaasti niin kiinteistön pihalla kuin halleissa. Pyöräilijöitä on muistettu suihku- ja pukeutumistiloilla sekä kuivaushuoneella.
Omistaja kehittää vastuullisuuttaan pitkäjänteisesti ja kiinteistölle on jo nyt myönnetty BREEAM-sertifikaatti tasolla Very Good. Kaikki ostettava kulutussähkö on peräisin 100-prosenttisesti uusiutuvista lähteistä.
Tervetuloa tutustumaan! Mikäli tämä kohde ei vastaa toiveitanne, ota yhteyttä, etsimme juuri teille sopivan tai räätälöidyn toimitilan. Palvelumme on vuokralaisille veloitukseton.
Kuvat ovat esimerkkikuvia asiakkaille toteutetuista ratkaisuista.
Aallonharja-kiinteistö on juuri uudistettu. Viihtyisissä rakennuksissa on kaikki tarvittavat palvelut, kuten aulapalvelu, neuvotteluhuoneet, kuntosali, edustustilat jne. Kiinteistön vetonaula on A-talon erittäin suosittu Waves by Dylan -lounasravintola. D-talon kahvila tarjoaa tuoreita leivonnaisia, aamiaista ja välipaloja.
Kiinteistön Tekniikantie 4/Aallonharjan sijainti on mitä parhain aivan Kehä I:n vieressä, ja Aaltoyliopiston metroasema sekä raidejokeri ovat kävelymatkan päässä. Autopaikkoja löytyy runsaasti niin kiinteistön pihalla kuin halleissa. Pyöräilijöitä on muistettu suihku- ja pukeutumistiloilla sekä kuivaushuoneella.
Omistaja kehittää vastuullisuuttaan pitkäjänteisesti ja kiinteistölle on jo nyt myönnetty BREEAM-sertifikaatti tasolla Very Good. Kaikki ostettava kulutussähkö on peräisin 100-prosenttisesti uusiutuvista lähteistä.
Tervetuloa tutustumaan! Mikäli tämä kohde ei vastaa toiveitanne, ota yhteyttä, etsimme juuri teille sopivan tai räätälöidyn toimitilan. Palvelumme on vuokralaisille veloitukseton.
Vapautuu
Kysy
Rakennusvuosi
1990
Kerros
5
Ota yhteyttä
Tuloskiinteistöt Oy
Rikhardinkatu 2 B 5, 00130 Helsinki
Näytä puhelinnumero
(09) 6841 620
Nina Meyke
Commercial Real Estate Advisor
Näytä puhelinnumero
+358 50 466 1519
Otto Ahtola
Commercial Real Estate Advisor
Näytä puhelinnumero
+358 40 042 2830
Pyydä lisätietoa
