Vuokrataan - Kerava
Haapaniitynkatu 8, Pihkaniitty, 04230 Kerava #10831370
Osoite
Haapaniitynkatu 8, 04230 Kerava
Muuta
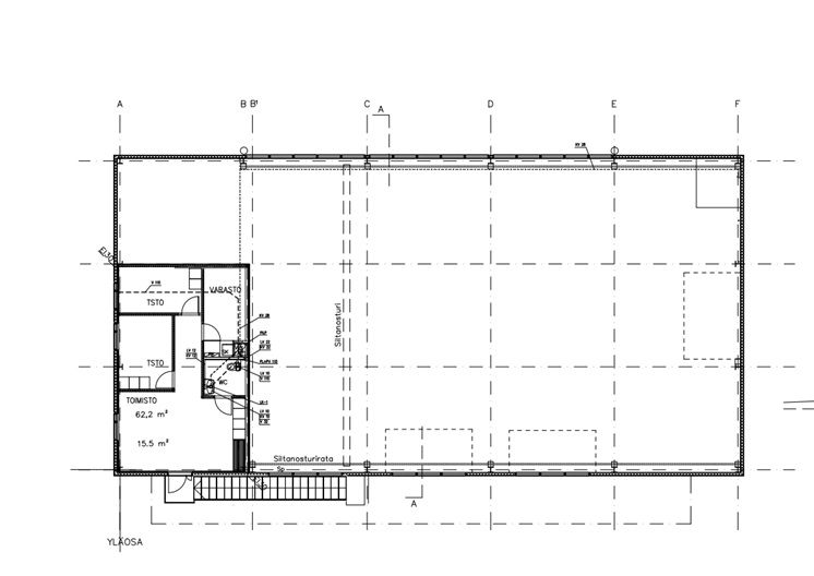
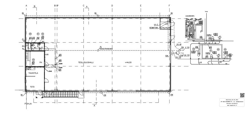
Haapaniitynkadulla Keravalla juuri valmistunut 450m2 halli. Hallista löytyy mm 3 * nosto-ovi, lattiakaivo, voimavirta jne.
Halli sopii monenlaiseen käyttöön. Korkeutta noin 8 metriä ja sinne on mahdollista asentaa 10 tonnin siltanosturi.
Lisätiedot. Sampo Ylikulju 040 354 1771 tai sampo.ylikulju@kiinteistotahkola.fi
Halli sopii monenlaiseen käyttöön. Korkeutta noin 8 metriä ja sinne on mahdollista asentaa 10 tonnin siltanosturi.
Lisätiedot. Sampo Ylikulju 040 354 1771 tai sampo.ylikulju@kiinteistotahkola.fi
Vapautuu
Heti vapaa
Rakennusvuosi
2025
Kerros
1
Siltanosturi
Ota yhteyttä
Kiinteistö-Tahkola Oy
Itälahdenkatu 15-17, 2krs, 00210 Helsinki
Näytä puhelinnumero
0207 480 294
Sampo Ylikulju
Näytä puhelinnumero
040 354 1771
Pyydä lisätietoa
