Vuokrataan toimistotilat - Helsinki
Huopalahdentie 24, Munkkiniemi, 00350 Helsinki #10831356
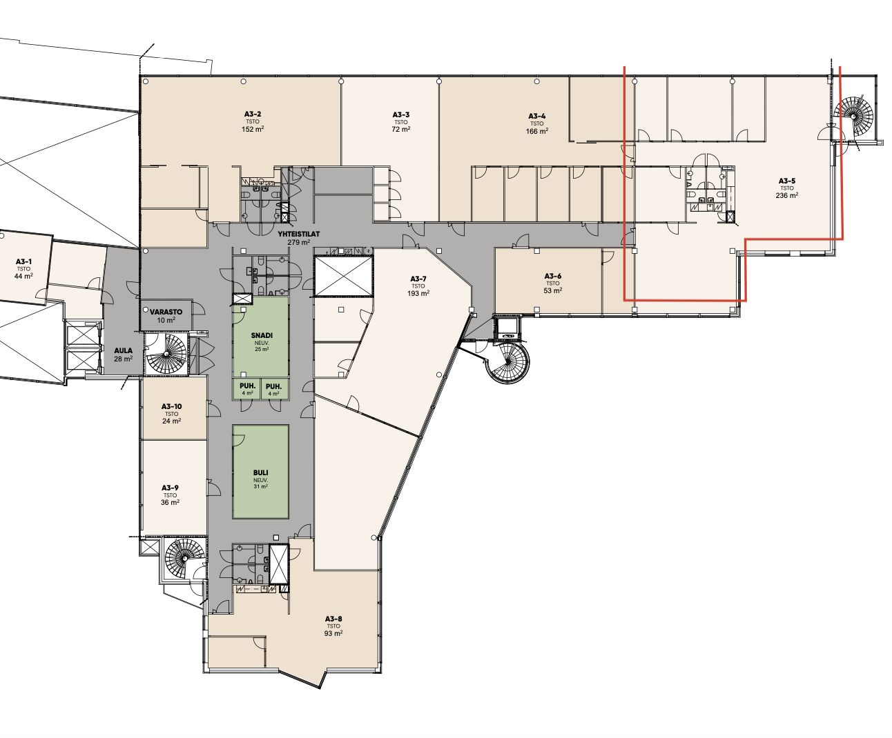
Vuokrattavana 236 m2 toimistotila kiinteistön 4. kerroksesta.
Munkkivuoren Huudi on nykyaikainen yrityspuisto, joka antaa yrityksille kodin. Monipuoliset palvelut ja muunneltavat työtilat tarjoavat puitteet hybridimuotoiseen työskentelyyn. Kahdesta tornista koostuva Huudi sijaitsee ostoskeskuksen, Huopalahdentien liikenneyhteyksien ja metsämaiseman kainalossa.
Toimistokiinteistö on remontoitu vuonna 2021, jolloin palvelut ja tilat päivitettiin tämän päivän tarpeita vastaaviksi. A-talon yleiset tilat tullaan remontoimaan syksyn 2022 aikana.
Munkkivuoren Huudissa on 10 340 neliötä palveluita ja toimitilaa. Toimistohuoneita löytyy moneen tarpeeseen kätevistä pientoimistoista monipuolisiin koko kerroksen tiloihin. Työtilat ovat muunneltavissa vuokralaisen työskentelytapaan sopivaksi.
Yhtiöllä on 10 vieraspaikkaa pihalla. Henkilökunnan paikat osin pihalla ja osin kellarissa.
Lisätietoja numerosta 020 7290 710. Lisää kohteita osoitteessa premises.fi.
Energialuokka EKerros: 4
CRE PREMISES
Puh. Näytä puhelinnumero 020 7290 710
Vantaankoskentie 14
01670 VANTAA
