Vuokrataan toimistotilat - Lahti
Askonkatu 9, Askonalue, 15100 Lahti #10831341
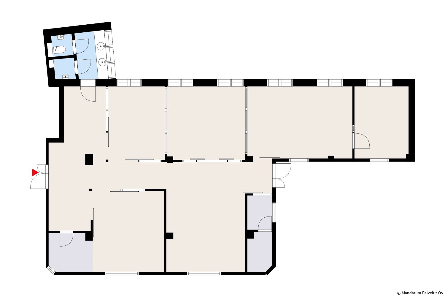
Tyylikäs toimisto historiallisen Lahden Askotalon 3. kerroksessa. Tilassa on useita neuvotteluhuoneita, taukotila ja wc-tilat.
Rauhallinen sijainti keskellä taloa. Lounasravintola ja kahvila ovat pari kerrosta alempana. Kiinteistö sijaitsee Lahden Matkakeskuksen vieressä ja autolla liikkuville on tarjolla runsaasti paikoitustilaa. Tule tutustumaan!
Osoite
Askonkatu 9, 15100 Lahti
Tilatyyppi
Toimistotilaa
192 m2
Kiinteistö
Askotalo
Pysäköinti
Kiinteistön lähistöllä on useita pysäköintialueita.
Palvelut
Lounasravintola, catering, vuokrattavia neuvottelutiloja, tietotekniikkapalvelut, videoneuvottelu
Muuta
Tilan ominaisuudet:
Vapautuu
Heti vapaa
Kerros
3.
Energiatehokkuusluokka
C
Ota yhteyttä
Mandatum Asset Management Palvelut Oy
Bulevardi 56, 00120 Helsinki
Näytä puhelinnumero
020 031 100
Simo Niemelä
Näytä puhelinnumero
040 869 1096
Pyydä lisätietoa
