Vuokrataan toimistotilat - Helsinki
Lautatarhankatu 6, Kalasatama, 00580 Helsinki #10831324
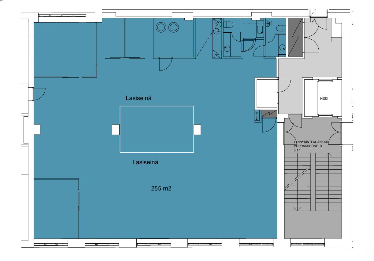
Vuokrattavana 3. kerroksen korkea, muuttovalmista toimistotilaa, jossa on useita huoneita sekä avotilaa.
Osoite
Lautatarhankatu 6, 00580 Helsinki
Tilatyyppi
Toimistotilaa
256 m2
Tilajako
Jaettavissa
Laajennettavissa
Kiinteistö
Vuokrattavana 3. kerroksen korkea, muuttovalmista toimistotilaa, jossa on useita huoneita sekä avotilaa.
Sijainti
Kalasatama, Helsinki
Pysäköinti
Kiinteistön sisäpihalla tarjolla autopaikkoja sekä alueen pysäköintilaitokset.
Palvelut
-Aulapalvelut
-Lounasravintola
-Vuokrattavia neuvuttelutiloja
Lisäksi lähialueella useita lounasravintoloita ja vähittäiskauppoja
-Lounasravintola
-Vuokrattavia neuvuttelutiloja
Lisäksi lähialueella useita lounasravintoloita ja vähittäiskauppoja
Kulkuyhteydet
-Metro
-Bussi
-Raitiovaunu
-Oma auto
-Bussi
-Raitiovaunu
-Oma auto
Vapautuu
Heti
Kerros
3
Energiatehokkuusluokka
Ei lain edellyttämää energiatodistusta
Näkyvällä paikalla
Jaettavissa
Hissi
Ota yhteyttä
REALIUM OY LKV
Tammasaarenkatu 1, 00180 Helsinki
Vaihde:
Näytä puhelinnumero
010 326 346
Tuomo Mäkelä
tuomo.makela@realium.fi
p.
Näytä puhelinnumero
044 050 1158
Joel Keto
joel.keto@realium.fi
p.
Näytä puhelinnumero
045 317 0330
KAIKKI TILAVAIHTOEHDOT KERRALLA!
SOITA - MEILAA JA TILAA NÄYTTÖ!
Ilmainen palvelu tilanhakijoille.
Kartoitamme parhaat tilavaihtoehdot.
Kaikki kohteet eivät ole netissä.
Pyydä lisätietoa
