Vuokrataan toimistotilat - Helsinki
Kaivotalo, Kaivokatu 10 C, Keskusta, 00100 Helsinki #10831318
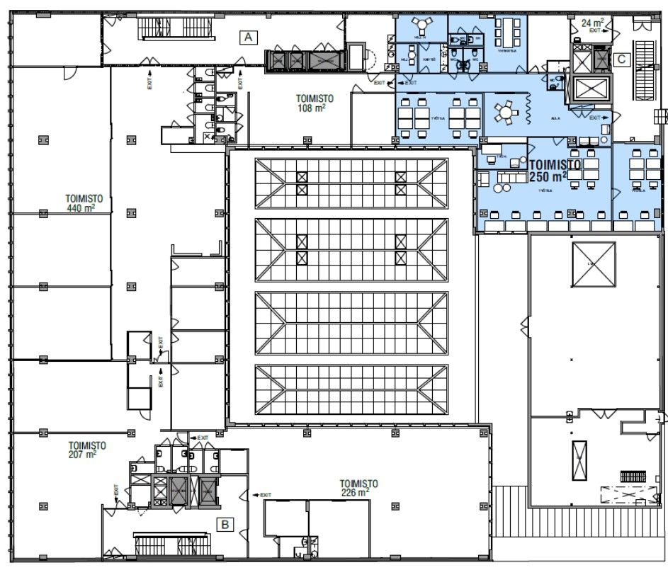
Helsingin ydinkeskustassa erillisjäähdytyksellä varustettua siistikuntoista, muuntojoustavaa kombitoimistotilaa jäähdyttävällä ilmasoinnilla, lasiseinät käytävälle. Ota yhteyttä ja sovi esittely, palvelumme on tilanhakijoille ilmainen. Puh. 09 7745 100.
Osoite
Kaivokatu 10 C, 00100 Helsinki
Tilatyyppi
Toimistotilaa
250 m2
Tilajako
Jaettavissa
Kiinteistö
Toimistotalo
Sijainti
Keskusta, Rautatieasemaa vastapäätä.
Pysäköinti
Pysäköintihallit
Kulkuyhteydet
Kaikki julkiset liikennevälineet.
Vapautuu
Heti
Kerros
5 / 8
Energiatehokkuusluokka
Ei lain edellyttämää energiatodistusta
Näkyvällä paikalla
Jaettavissa
Hissi
Ota yhteyttä
Senaatin Notariaatti Oy LKV
Lämmittäjänkatu 4 A
FIN-00880 Helsinki
Tel:
Näytä puhelinnumero
+358 9 7745 100
Pyydä lisätietoa
