Vuokrataan varastotilat - Helsinki
Valokaari 8, Suutarila, 00750 Helsinki #10831313
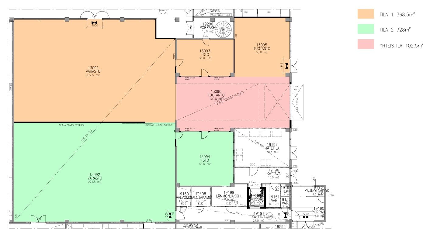
Heti vapaana siistiä ja 7 m korkeaa tuotanto-/varastotilaa.
Toimitila koostuu n. 700 m² varastosta sekä n. 120 m² liike/toimistotilasta.
Osoite
Valokaari 8, 00750 Helsinki
Tilatyyppi
Varastotilaa
923 m2
Pohjapiirros
Kiinteistö
Toimitilassa on maantason nosto-ovi kooltaan 4,5 m (leveys) * 3,5 m (korkeus) ja
lisäksi käytössä on yhteiskäyttölaituri.
Tarpeen mukaan lisää toimistoja tarjolla myös kohteen 3. kerroksessa.
lisäksi käytössä on yhteiskäyttölaituri.
Tarpeen mukaan lisää toimistoja tarjolla myös kohteen 3. kerroksessa.
Sijainti
Näkyvällä paikalla Kehä III:n varrella Helsingin Suutarilassa.
Palvelut
Lounasravintola, kuntosali. Käytettävissä on neuvottelutiloja sekä saunoja.
Vapautuu
Heti
Ympäristöluokitus
BREEAM Very Good
Katutasossa
Näkyvällä paikalla
Ota yhteyttä
Suomen Kiinteistöinstituutti Oy
Svinhufvudintie 1
00570 HELSINKI - KULOSAARI
Tom Dahlström Näytä puhelinnumero 050 66 959
http://www.kiinteistoinstituutti.fiPyydä lisätietoa
