Vuokrataan toimistotilat - Helsinki
Kaivotalo, Kaivokatu 10 A, Keskusta, 00100 Helsinki #10831312
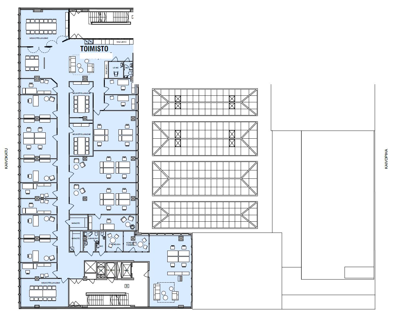
Helsingin ydinkeskustassa, Rautatieasemaa vastapäätä sijaitseva moderni toimistotila, jossa avotilaa ja huoneita. Ota yhteyttä ja sovi esittely, vuokrauspalvelumme on tilanhakijoille maksuton.
Osoite
Kaivokatu 10 A, 00100 Helsinki
Tilatyyppi
Toimistotilaa
718 m2
Kiinteistö
Toimistotalo
Sijainti
Keskusta, Rautatieasemaa vastapäätä.
Pysäköinti
Pysäköintihallit
Palvelut
Kaikki keskustan palvelut.
Kulkuyhteydet
Kaikki julkiset liikennevälineet.
Muuta
Katso pohjakuva PDF liitetiedostosta.
Vapautuu
Heti
Kerros
7 / 8
Energiatehokkuusluokka
Ei lain edellyttämää energiatodistusta
Näkyvällä paikalla
Hissi
Ota yhteyttä
Senaatin Notariaatti Oy LKV
Lämmittäjänkatu 4 A
FIN-00880 Helsinki
Tel:
Näytä puhelinnumero
+358 9 7745 100
Pyydä lisätietoa
