Vuokrataan toimistotilat - Oulu
Hautakorventie 15 A, Takalaanila, 90620 Oulu #10831307
Osoite
Hautakorventie 15 A, 90620 Oulu
Tilatyyppi
Toimistotilaa
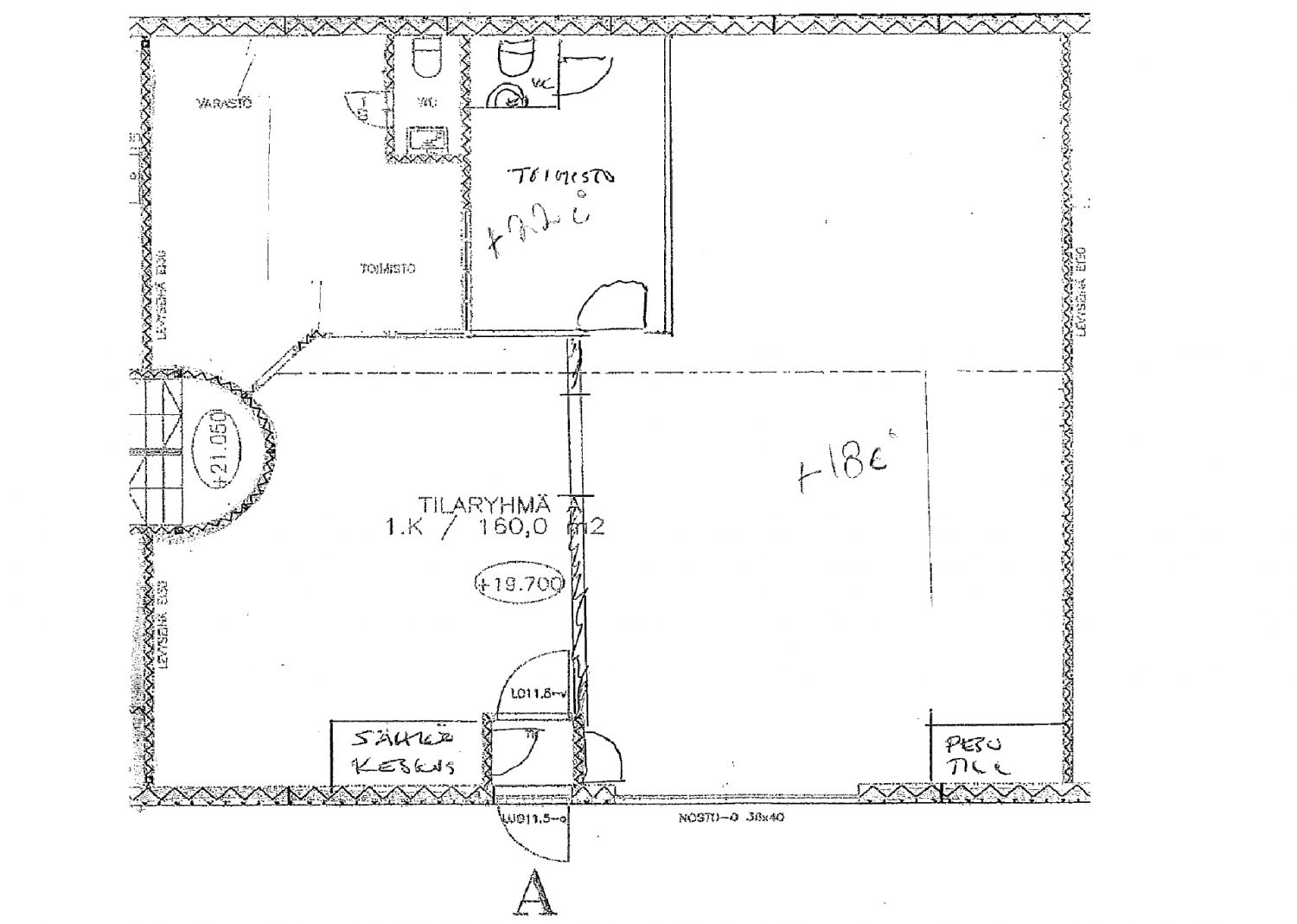
160 m2
Vuokra
1280,00 €/kk
Vuokraan sisältyy lämpö
Muuta
Hautakorventiellä Takalaanilassa vuokrattavana hyväkuntoista ja siistiä toimisto- ja hallitilaa hyvällä sijainnilla!
Hallissa rakennettuna erillinen pesupaikka ja lisäksi toimisto-osio, jonka yhteydessä minikeittiö ja 2 vessaa. Hallin tilaa on jaettu väliseinällä, jossa ovi toiselle puolelle. Tilaan asennettu ilmalämpöpumppu, joka lämmittää tai jäähdyttää, tarpeen mukaan.
Hallissa nosto-ovi sekä erillinen käyntiovi.
Tilan yläpuolelta yläkerrasta on mahdollisuus vuokrata lisätilaa toimistoksi n. 85 m2, johon käynti järjestettävissä hallin puolelta sekä lisäksi juuri remontoitua toimistotilaa seinän takaa katutasosta 22,5 m2. Kysy tarvittaessa lisää.
Vuokra: 1280,00 €/kk + alv.
Erilliskorvauksena vuokralainen vastaa sähköstä ja vedestä kulutuksen mukaan.
Vuokralainen tekee oman sähkösopimuksen.
Pihassa vuokrattavana myös autopaikkoja. Lämpötolpallinen 25 €/kk ja kylmäpaikka 15 €/kk, hinnat + alv.
Olehan yhteydessä ja kysy lisää!
Eikö tämä ole sopiva? Kysy muita vaihtoehtojamme!
Hallissa rakennettuna erillinen pesupaikka ja lisäksi toimisto-osio, jonka yhteydessä minikeittiö ja 2 vessaa. Hallin tilaa on jaettu väliseinällä, jossa ovi toiselle puolelle. Tilaan asennettu ilmalämpöpumppu, joka lämmittää tai jäähdyttää, tarpeen mukaan.
Hallissa nosto-ovi sekä erillinen käyntiovi.
Tilan yläpuolelta yläkerrasta on mahdollisuus vuokrata lisätilaa toimistoksi n. 85 m2, johon käynti järjestettävissä hallin puolelta sekä lisäksi juuri remontoitua toimistotilaa seinän takaa katutasosta 22,5 m2. Kysy tarvittaessa lisää.
Vuokra: 1280,00 €/kk + alv.
Erilliskorvauksena vuokralainen vastaa sähköstä ja vedestä kulutuksen mukaan.
Vuokralainen tekee oman sähkösopimuksen.
Pihassa vuokrattavana myös autopaikkoja. Lämpötolpallinen 25 €/kk ja kylmäpaikka 15 €/kk, hinnat + alv.
Olehan yhteydessä ja kysy lisää!
Eikö tämä ole sopiva? Kysy muita vaihtoehtojamme!
Vapautuu
Heti vapaa
Kerros
1
Energiatehokkuusluokka
H (ei luokitusta)
Ota yhteyttä
Kiinteistö-Tahkola Oy
Lumijoentie 1, 90400 Oulu
Näytä puhelinnumero
0207 480 250
Sami Kortesoja
Näytä puhelinnumero
045 896 4803
Pyydä lisätietoa
