Vuokrataan toimistotilat - Helsinki
Lautatarhankatu 6, Sörnäinen, 00580 Helsinki #10831289
Pientoimistotilaa Lindström Talossa urbaanin Kalasataman alueella.
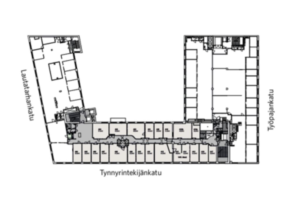
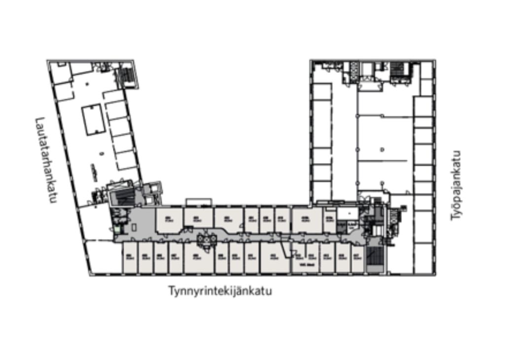
Vuokrattavana 20 m² - 60 m² kokoisia pientoimistotiloja kiinteistön 4. kerroksesta, pientoimistoalueelta. Vuokralaisten käytössä on kaikki talon monipuoliset palvelut: aula- ja ravintolapalvelut, monipuoliset kokoustilat sekä postituspalvelut. Vuokraan sisältyy WLAN, kahvia ja teetä kerroksen yhteiskeittiössä, siivous kerran viikossa, aulapalvelu ja sähkö. Kuvat ovat yleiskuvia kiinteistön tiloista.
Lautatarhankatu 6 eli Lindström talo on 1900-luvun punatiilinen teollisuuskiinteistö, joka on saneerattu vuonna 2013. Uudistetun kiinteistön tilat ovat tehdashenkisiä ja joustavasti muokattavissa vuokralaisen tarpeiden mukaan. Kiinteistössä on monipuoliset palvelut kuten ravintola- ja kokouspalvelu, aula- ja toimistopalvelut, auto- ja rengaspalvelut, klubiauto sekä pesulapalvelut. Urbaania tunnelmaa luo lisäksi vieressä sijaitseva Teurastamo palveluineen. Rakennus sijaitsee hyvien kulkuyhteyksien varrella koko ajan kehittyvän Kalasataman alueella. Metro ja REDI ovat kävelymatkan päässä.
Kysy lisää numerosta 044 723 4700 tai info@bref.fi. Palvelumme on tilanhakijoille ilmainen.
Hissi
Bureau Real Estate Finland Oy
Lars Sonckin kaari 16, 02600 Espoo
Näytä puhelinnumero
0447234700
Bureau Real Estate Finland Oy
https://www.bref.fi