Vuokrataan toimistotilat - Lahti
Askonkatu 9, Askonalue, 15100 Lahti #10831271
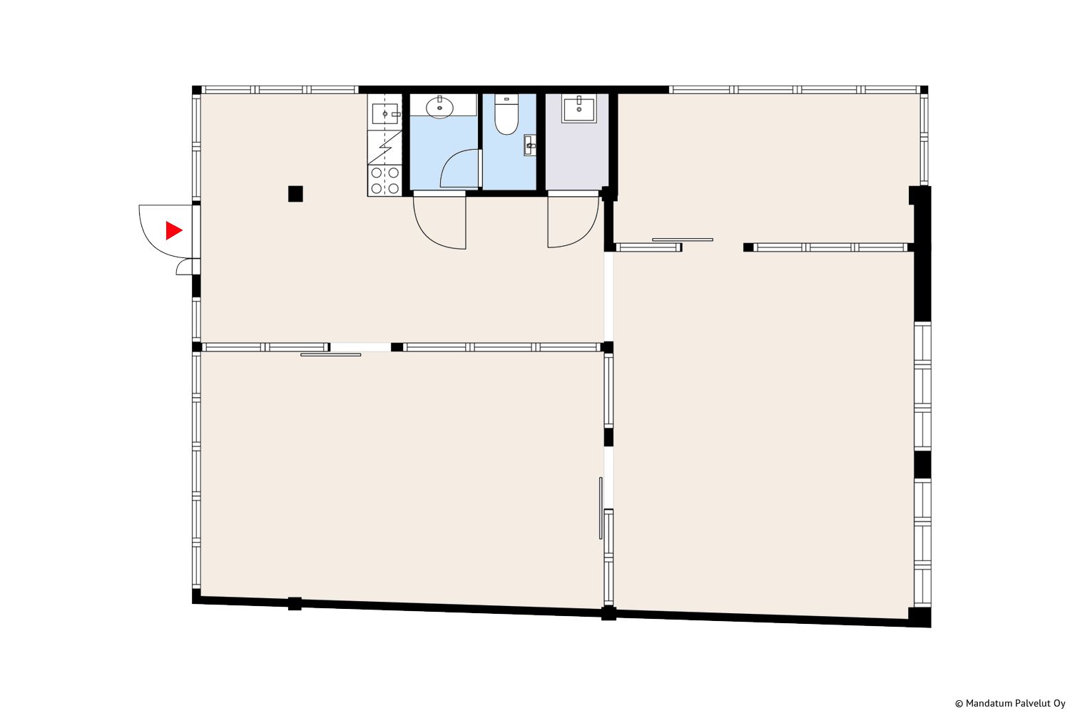
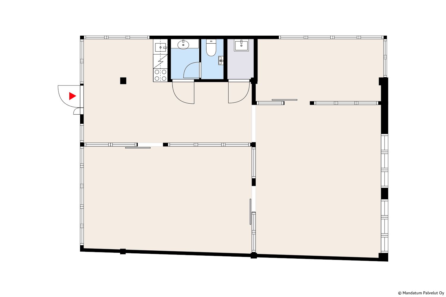
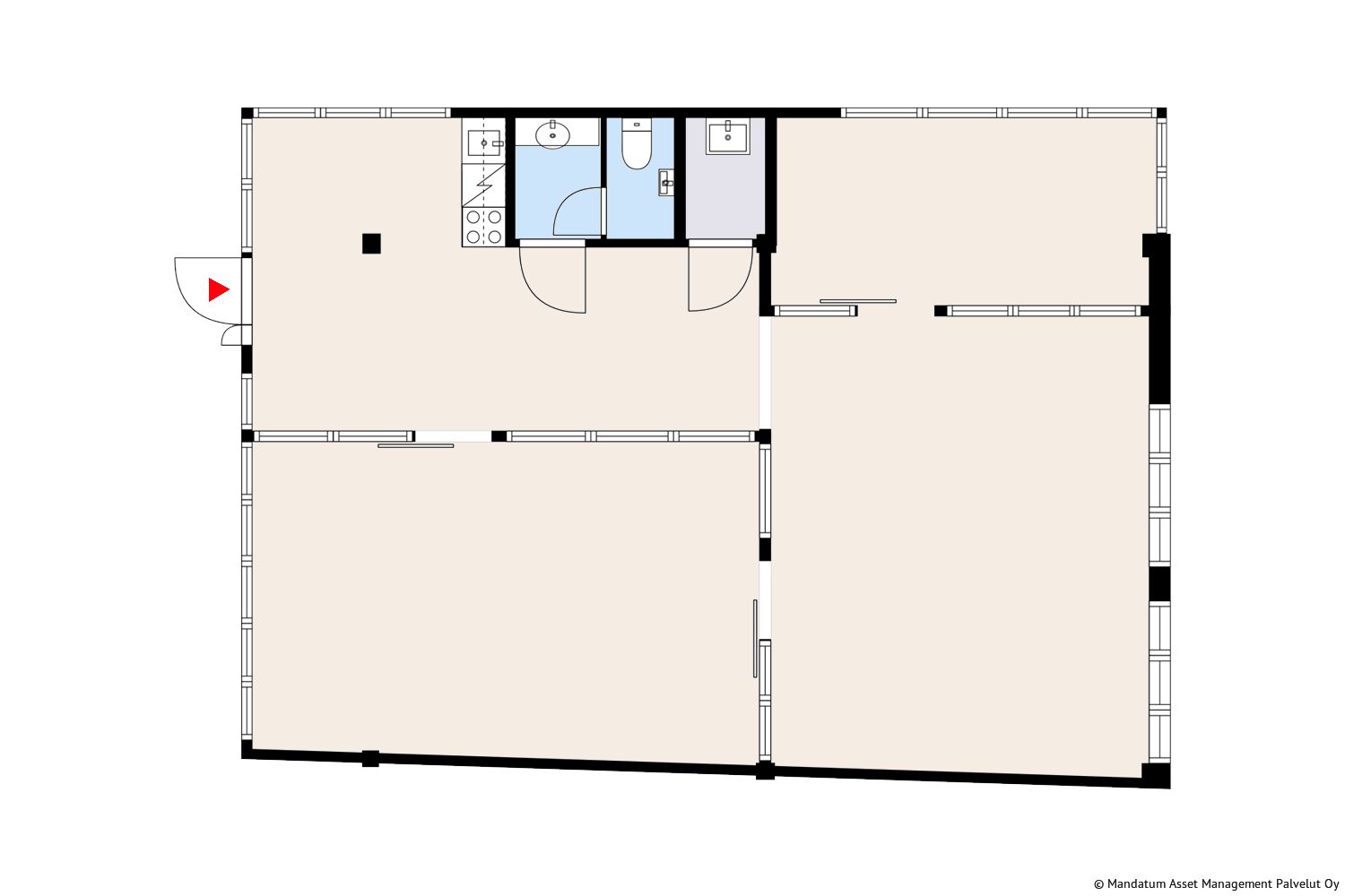
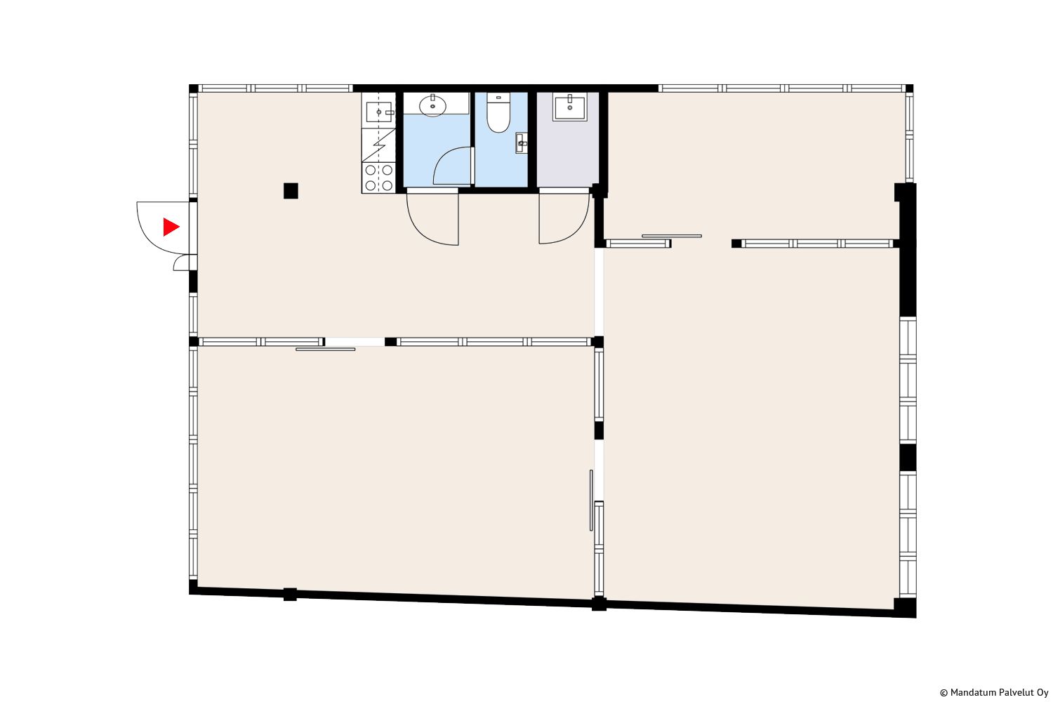
Tässä muuttovalmiissa toimitilassa on pieni keittiö, toimistohuone, avotoimistotilaa sekä neuvottelutila. Sijaitsee Askotalossa, jonka alakerrassa on lounasravintola, kahvila sekä vuokrattavia kokoustiloja. Pysäköintipaikkoja on mahdollista vuokrata. Askotalolla on erinomainen sijainti Lahden matkakeskuksen vieressä.
Osoite
Askonkatu 9, 15100 Lahti
Tilatyyppi
Toimistotilaa
112 m2
Kiinteistö
Askotalo
Pysäköinti
Kiinteistön lähistöllä on useita pysäköintialueita.
Palvelut
Lounasravintola, catering, vuokrattavia neuvottelutiloja, tietotekniikkapalvelut, videoneuvottelu
Muuta
Tilan ominaisuudet: avo-/kombitoimisto
Vapautuu
Heti vapaa
Kerros
4.
Energiatehokkuusluokka
C
Ota yhteyttä
Mandatum Asset Management Palvelut Oy
Bulevardi 56, 00120 Helsinki
Näytä puhelinnumero
020 031 100
Simo Niemelä
Näytä puhelinnumero
040 869 1096
Pyydä lisätietoa
