Vuokrataan - Oulu
Jääsalontie 20, Limingantulli, 90400 Oulu #10831267
Osoite
Jääsalontie 20, 90400 Oulu
Vuokra
1862,50 €/kk
Vuokraan sisältyy sähkö, vesi, lämpö
Muuta
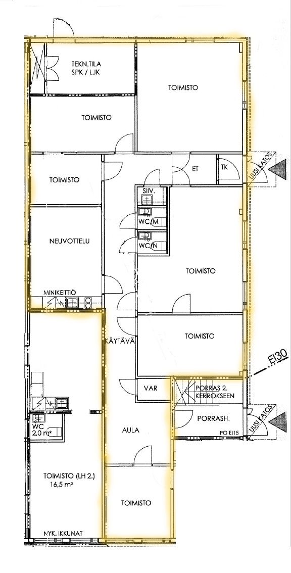
Siisti katutason toimistotila, jossa on useampi erillinen toimistohuone. Tilassa on toimistotilojen lisäksi kaksi vessaa, keittiötila, siivouskomero ja varasto. Ilmalämpöpumput ovat kesäisin viilentämässä tiloja. Pihassa on runsaasti autopaikkoja asiakkaille ja henkilökunnalle. Erinomainen sijainti ja saavutettavuus joka puolelta kaupunkia.
Vuokra sisältää kaikki kulut eli lämmityksen, normaalin toimistokäytön sähkön ja veden. Tässä siistit tilat yrityksellesi!
Lisätiedot 040 5400 672 tai joni.romppainen@kiinteistotahkola.fi.
Eikö tämä ole sopiva? Kysy muita vaihtoehtojamme!
Vuokra sisältää kaikki kulut eli lämmityksen, normaalin toimistokäytön sähkön ja veden. Tässä siistit tilat yrityksellesi!
Lisätiedot 040 5400 672 tai joni.romppainen@kiinteistotahkola.fi.
Eikö tämä ole sopiva? Kysy muita vaihtoehtojamme!
Vapautuu
Heti vapaa
Rakennusvuosi
1980
Kerros
1
Ota yhteyttä
Kiinteistö-Tahkola Oy
Lumijoentie 1, 90400 Oulu
Näytä puhelinnumero
0207 480 250
Joni Romppainen
Näytä puhelinnumero
0405400672
Pyydä lisätietoa
