Vuokrataan tuotantotilat - Oulu
Ratamotie 22, Rajakylä, 90580 Oulu #10831266
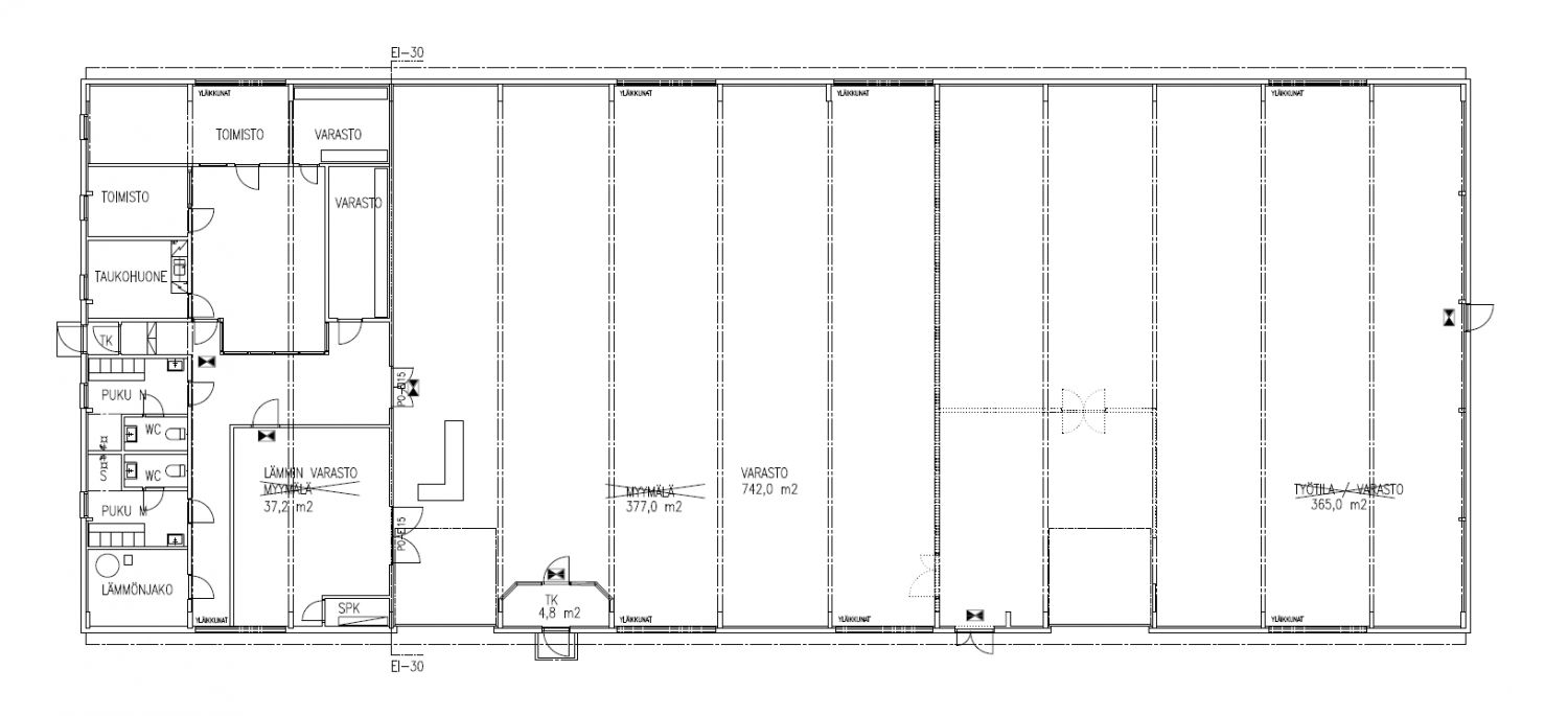
Osoite
Ratamotie 22, 90580 Oulu
Tilatyyppi
Tuotantotilaa
1050 m2
Vuokra
6800,00 €/kk
Muuta
Vuokrataan Rajakylästä teollisuushalli, joka soveltuu monenlaiseen käyttöön. Ison hallitilan lisäksi löytyy pukuhuoneen ja vessat. Viemärikaivoja ei ole hallin puolella, valaistus LED -valaisimin. Vapaa sisäkorkeus 3,3 metriä. Kiinteistön katolla on aurinkovoimala (15,6kWp).
Lämmitys sähköllä, tilassa on on 9kpl ilmalämpöpumppuja, kaikissa jäähdytys/lämmitys -toiminnot. Vuokralainen vastaa käyttökuluista. Pihatilaa on mukavasti ja rakennusoikeutta hyvin jäljellä. Vuokraan ei lisätä ALV:a. Tila vapautettavissa sopimuksen mukaan 6kk:n sisällä.
Lisätiedot 040 5400 672 tai joni.romppainen@kiinteistotahkola.fi.
Eikö tämä ole sopiva? Kysy muita vaihtoehtojamme!
Lämmitys sähköllä, tilassa on on 9kpl ilmalämpöpumppuja, kaikissa jäähdytys/lämmitys -toiminnot. Vuokralainen vastaa käyttökuluista. Pihatilaa on mukavasti ja rakennusoikeutta hyvin jäljellä. Vuokraan ei lisätä ALV:a. Tila vapautettavissa sopimuksen mukaan 6kk:n sisällä.
Lisätiedot 040 5400 672 tai joni.romppainen@kiinteistotahkola.fi.
Eikö tämä ole sopiva? Kysy muita vaihtoehtojamme!
Vapautuu
Heti vapaa
Rakennusvuosi
1980
Kerros
1
Ota yhteyttä
Kiinteistö-Tahkola Oy
Lumijoentie 1, 90400 Oulu
Näytä puhelinnumero
0207 480 250
Joni Romppainen
Näytä puhelinnumero
0405400672
Pyydä lisätietoa
