Vuokrataan toimistotilat - Helsinki
Toinen linja 7, Hakaniemi, 00530 Helsinki #10831207
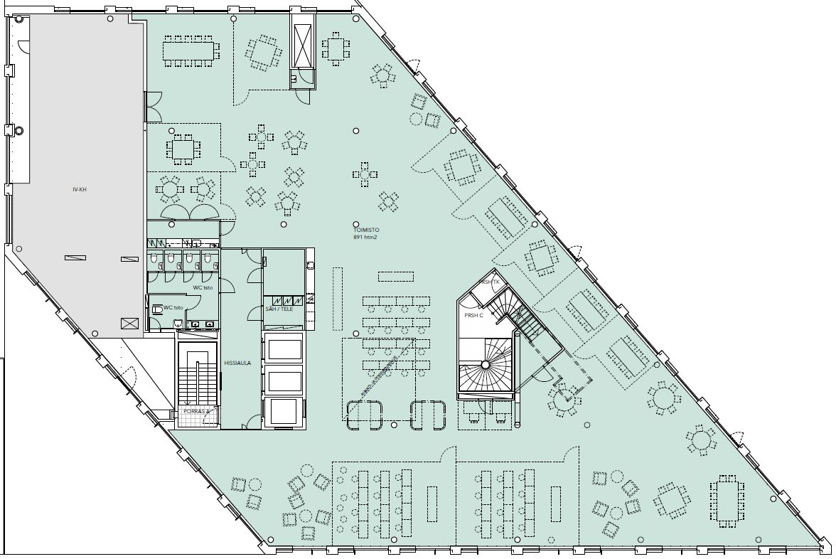
TOINEN LINJA 7 - toimistotila 891m2
Lyyran 8. kerroksen moderni toimistotila tarjoaa upeat näkymät Eläintarhanlahdelle ja mahdollisuuden räätälöidä tilan juuri yrityksesi tarpeisiin.
Tila muokataan pohjaratkaisultaan ja pinnoiltaan yhteistyössä vuokralaisen kanssa, jotta tila vastaa täydellisesti odotuksianne ja toiminnan vaatimuksia.
Lyyran kortteli on monipuolinen ja elävä kokonaisuus, johon kuuluvat hotelli, liiketilat, toimistotilat sekä vuokra-asunnot.
Sijainti Hakaniemen metroaseman yläpuolella tarjoaa suoran yhteyden julkiseen liikenteeseen, ja metrosta pääsee helposti niin ravintolamaailmaan kuin toimistorakennuksiin.
Tässä kohteessa työskentelet LEED Platinum- ja WELL-sertifioiduissa tiloissa, mikä takaa ympäristöystävällisen ja terveellisen työskentely-ympäristön.
Lyyrassa pysäköit kätevästi joko Lyyran omille parkkipaikoille tai jatkossa lähialueelle suunniteltuun pysäköintilaitokseen.
Raitiovaunut ja bussit pysähtyvät aivan lähietäisyydellä.
Pyöräilijöille on varattu turvallinen lämmitetty pyörähalli.
Lyyraa sivuava kävelykatu ja lähialueen palvelut, kuten Hakaniemen kauppahalli ja Kallion kivijalkaliikkeet, luovat inspiroivan ja monipuolisen ympäristön työlle ja oheistoiminnoille.
Lisätiedot ja kohdenäytöt: p. 040 7070 321 / HeikkiKerros: 8
CRE PREMISES
Puh. Näytä puhelinnumero 020 7290 710
Vantaankoskentie 14
01670 VANTAA
