Vuokrataan toimistotilat - Helsinki
Hermannin rantatie 8, Hermanni, 00580 Helsinki #10831202
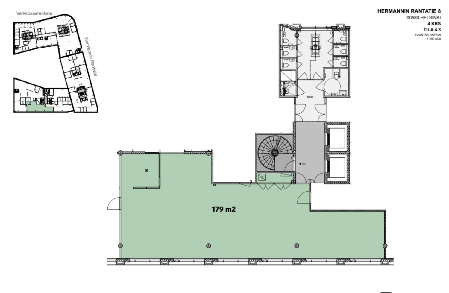
Moderni ja valoisa avotilatoimisto, johon asennetaan uusi keittiö. Modernissa ja tyylikkäässä Rantatie Business Parkissa on erinomaiset palvelut ja toimitilat, jotka on suunniteltu ketterienkin organisaatioiden tarpeisiin mukautuviksi. Kohde sijaitsee erinomaisella paikalla Kalasataman alueella. Metro, ratikka ja REDI ovat kävelymatkan päässä.
Business Park koostuu kolmesta talosta, joista Original on valmistunut vuonna 2010, Kasvu vuonna 2017 ja uusin Loikka rakennus kesällä 2019. Business Parkin asiakkaita palvelevat laadukkaat ja edustavat aula-, ravintola- ja neuvottelutilat sekä auditorio ja pysäköintihalli. Lisäksi talossa on käytössä vierasparkki, pyöräparkki, sosiaali- ja suihkutilat, autopesula, suutari ja hierontapalvelut.
Lisätietoja 020 7290 710. Lisää kohteita premises.fi.
Kohteella ei ole lain edellyttämää energiatodistusta tai energialuokka ei tiedossa.Kerros: 4
CRE PREMISES
Puh. Näytä puhelinnumero 020 7290 710
Vantaankoskentie 14
01670 VANTAA
