Vuokrataan toimistotilat - Espoo
Linnoitustie 2, Leppävaara, 02600 Espoo #10831183
Korkeatasoista toimistotilaa Quartetto Business Park Leppävaarassa.
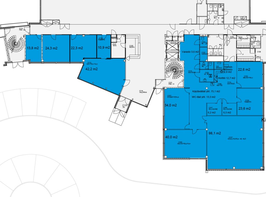
Tämä 113,5 m² toimistotila koostuu erikokoisista huoneista ja showroomtilasta. Toimisto on mahdollista vuokrata kokonaan tai huoneittain 13,8 m², 24,3 m², 22,3 m² ja 53,1 m² kokoisina. Kokonaisuus on mahdollista vuokrata yhdessä vieressä sijaitsevan 338,5 m² toimiston kanssa.
Talossa kattavat palvelut. Quartetto-taloista löytyvät mm. edustussaunat ja -tilat yrityksenne käyttöön sekä mm. lounasravintola, aulapalvelu oheispalveluineen sekä liikunta- ja fysioterapiapalvelut. Kiinteistöstä vuokrattavana myös autohallipaikkoja.
Kysy lisää numerosta 050 589 7224 / rony.korsstrom@bref.fi tai 044 723 4700 / info@bref.fi. Palvelumme on tilanhakijoille ilmainen.
Hissi
Bureau Real Estate Finland Oy
Lars Sonckin kaari 16, 02600 Espoo
Näytä puhelinnumero
0447234700
Bureau Real Estate Finland Oy
https://www.bref.fi