Vuokrataan toimistotilat - Helsinki
Elimäenkatu 5, Vallila, 00510 Helsinki #10831154
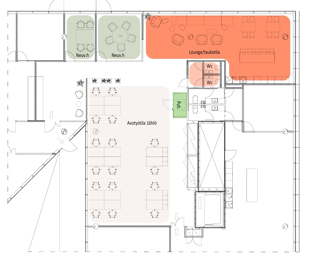
Nyt vuokrattavissa moderni aina valmis tila – voitkin muuttaa tänne vaikka huomenna! Nyt vuokrattavissa moderni aina valmis tila – voitkin muuttaa tänne vaikka huomenna! Tilasta löytyy monipuolisesti niin avotyötilaa kuin myös yksi työhuone. Lisäksi tilasta löytyy moderni taukotila keittiöllä ja siistit wc-tilat.
Elimäenkatu 5 sijaitsee näyttävässä lasisessa kiinteistössä. Suuret lasiseinät tuovat tiloihin runsaasti luonnonvaloa ja luovat avaran, miellyttävän työympäristön. Tiloissa yhdistyvät toiminnallisuus ja viihtyisyys. Käytössäsi ovat myös monipuoliset palvelut, kuten ravintola, aulapalvelu, neuvottelutilat ja edustussaunat. Lisäksi kiinteistöstä löytyy POOL-konsepti, joka tarjoaa joustavuutta yrityksen toimitilatarpeisiin. Sijainti on erinomainen ja helposti saavutettavissa kaikilla kulkuvälineillä – autolla, pyörällä tai julkisilla.
Me Croisettella autamme teitä löytämään teille parhaat tilat! Olemme puolueettomia asiantuntijoita ja tunnemme toimitilamarkkinat, talot sekä tilat vankalla kokemuksella. Meillä on välityksessä kaikki toimitilat ja tiedämme niiden alustavat vuokratasot.
Tehtävämme on tehdä toimitilahaustanne onnistunut ja helppo. Saamme palkkiomme kiinteistönomistajalta, joten sinulle palvelumme on täysin maksuton.
Hissi
Croisette Real Estate Partner
Erottajankatu 5 A 6, 00130 Helsinki
Näytä puhelinnumero
+358 400 585 857
Croisette Vuokraus
Näytä puhelinnumero
+358400585857
