Vuokrataan toimistotilat - Espoo
Muurarinkuja 1, Leppävaara, 02650 Espoo #10831016
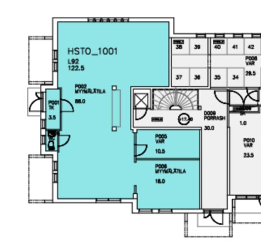
Toimisto-/liiketilaa Espoon Leppävaarassa.
Tämä 122,5 m² toimitila sijaitsee kiinteistön katutasossa. Tila soveltuu sekä toimistoksi että liiketilaksi. Ei sovellu kahvila-, ravintola- tai parturikampaamotoimintaan. This premise is not suitable for a restaurant, cafeteria or a barber shop. Tila on arvonlisäveroton.
Muurarinkuja 1 sijaitsee hyvällä paikalla Espoon Leppävaarassa. Alueelle on erinomaiset julkisen liikenteen yhteydet. Kiinteistö on hyvin saavutettavissa myös omalla autolla. Lyhyt matka Kehä I:lle ja Turunväylälle. Lähellä on useita lounasravintoloita ja päivittäistavarakauppoja. Kauppakeskus Selloon on lyhyt matka.
Kysy lisää numerosta 044 723 4700 tai info@bref.fi. Palvelumme on tilanhakijoille ilmainen.
Bureau Real Estate Finland Oy
Lars Sonckin kaari 16, 02600 Espoo
Näytä puhelinnumero
0447234700
Bureau Real Estate Finland Oy
https://www.bref.fi