Vuokrataan toimistotilat - Helsinki
Pohjoisesplanadi 21, Keskusta, 00100 Helsinki #10831003
Toimistotilaa loistavalla sijainnilla Helsingin keskustassa Pohjoisesplanadilla.
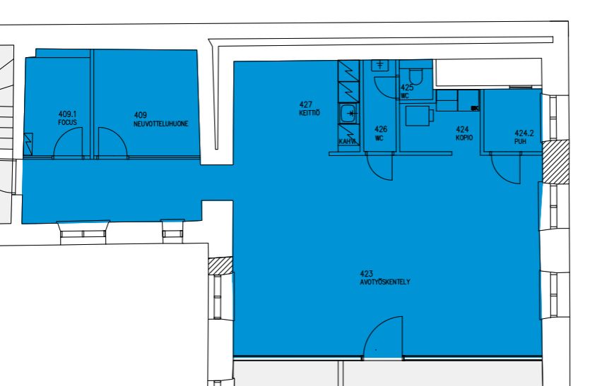
Vuokrattavana 95 m² toimistotila kiinteistön 4. kerroksesta. Toimistossa on avotilaa, työhuone, neuvotteluhuone sekä oma keittiöpiste ja wc-tila. Toimisto on muuttovalmiissa kunnossa. Näkymät sisäpihan suuntaan.
Pohjoisesplanadi 21 eli Cavoniuksen talo on Carl Ludvig Engelin suunnittelema. Se on liike- ja toimistokiinteistö, joka sijaitsee Pohjoisesplanadin varrella. Esplanadin alue tunnettaan useista luksusliikkeistään ja ravintoloistaan. Kiinteistöllä on pysäköintipaikkoja.
Kysy lisää numerosta 044 723 4700 tai info@bref.fi. Palvelumme on tilanhakijoille ilmainen.
Hissi
Bureau Real Estate Finland Oy
Lars Sonckin kaari 16, 02600 Espoo
Näytä puhelinnumero
0447234700
Bureau Real Estate Finland Oy
https://www.bref.fi