Vuokrataan toimistotilat - Helsinki
Eteläranta 14, Kaartinkaupunki, Kaartinkaupunki, 00100 Helsinki #10830967
Osoite
Eteläranta 14, Kaartinkaupunki, 00100 Helsinki
Tilatyyppi
Toimistotilaa
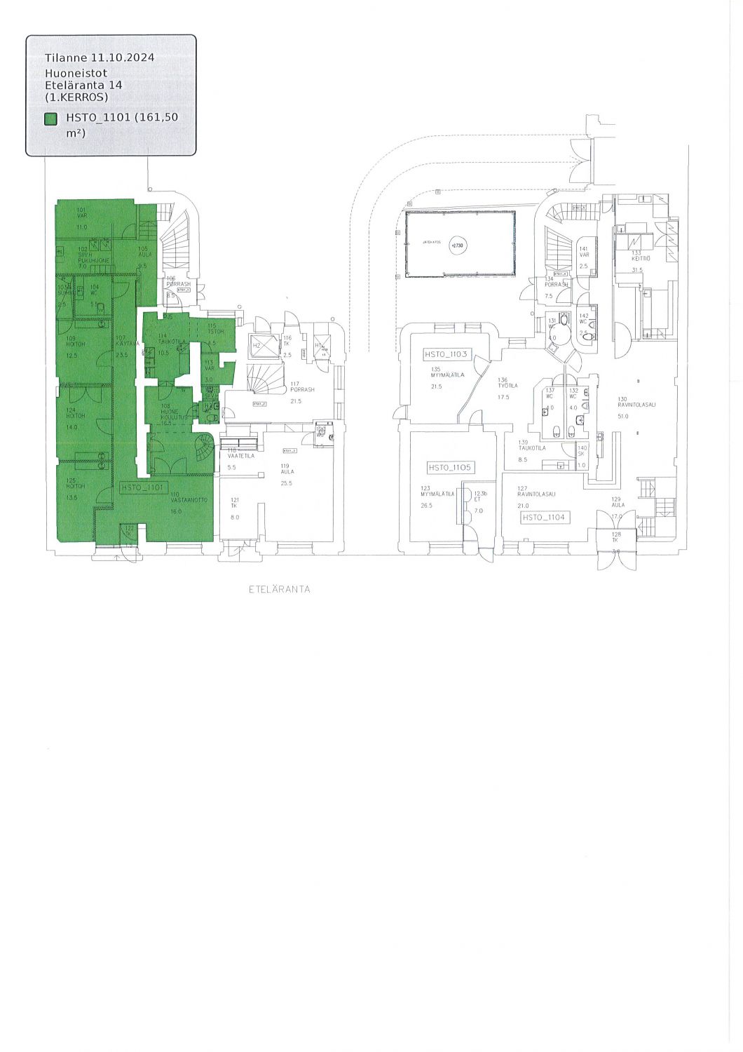
213 m2
Kiinteistö
Vuokrataan liiketilaa 213 m². Tila koostuu 161 m²:n liiketilasta sekä 51,5 m²:n parvesta, joka sopii toimistokäyttöön.
Tila toiminut hoitotilana.
Vuokrattavissa myös pientä varastotilaa kellarikerroksesta.
Ei sovellu ravintola/kahvila käyttöön.
Tila toiminut hoitotilana.
Vuokrattavissa myös pientä varastotilaa kellarikerroksesta.
Ei sovellu ravintola/kahvila käyttöön.
Sijainti
Kiinteistö sijaitsee upealla paikalla aivan Kauppatorin ja Vanhan kauppahallin kupeessa.
Kulkuyhteydet
Metroasema 980 m
Raitiovaunupysäkki 110 m
Bussipysäkki 20 m
Juna-asema 1,3 km
Lentoasema 19,7 km
Raitiovaunupysäkki 110 m
Bussipysäkki 20 m
Juna-asema 1,3 km
Lentoasema 19,7 km
Vapautuu
Heti
Energiatehokkuusluokka
C
Ota yhteyttä
Comreal Oy LKV
Tuula Leikas
Näytä puhelinnumero
040 531 3722
P.
Näytä puhelinnumero
020 744 1000
Läkkisepänkuja 6, 00620 Helsinki
Comreal Oy on kasvava ja osaava kiinteistöalan palveluntuottaja kiinteistöjen omistajille ja käyttäjille.
Kiinteistö on sijoittajalle hyvä sijoitus vain, jos siellä on tyytyväiset asiakkaat, eli vuokralaiset. Siksi laadukas asiakaspalvelu on toiminnan lähtökohta.
Pyydä lisätietoa
