Vuokrataan toimistotilat - Helsinki
Vanha Talvitie 11, Hermanni, 00580 Helsinki #10830939
Vanhan puolen upea tilakokonaisuus. Tilaan pääsee tavarahissillä.
Vanha Talvitie 11 sijaitsee Hermannissa, Vanhan Talvitien ja Verkkosaarenkadun kulmassa. Kauppakeskus Redin palvelut ovat kävelymatkan päässä.
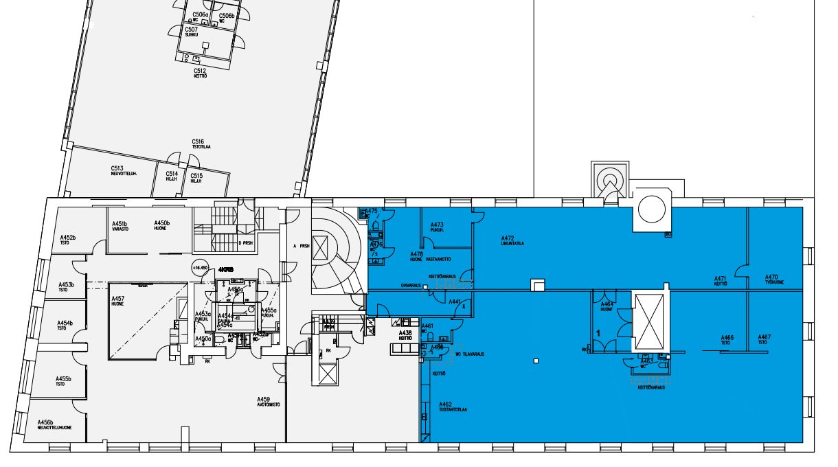
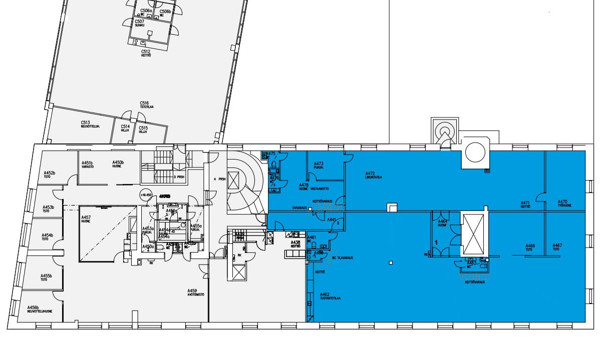
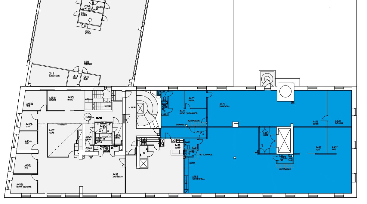
Kiinteistö muodostuu kahdesta erillisestä rakennuksesta. Arkkitehtuuriltaan upea vanha osa (v. 1919) on nelikerroksinen ja uusi osa (v. 1991) on kuusikerroksinen. Rakennuksen vanhalta puolelta löytyy persoonallisia ja vähän erikoisempiakin toimitilaratkaisuja. Vuokrattavaa toimitilaa kiinteistössä on kaikkiaan noin 6 700 m2.
Rakennushistoriallisesti ja kaupunkikuvallisesti arvokkaassa rakennuksessa on alunperin ja vuosien saatossa toiminut mm. perunajauho- ja makeistehdas sekä rautasänky- ja metallikalustetehdas.
Lisätiedot 020 7290 710. Lisää kohteita www.premises.fi
Energialuokka D.Kerros: 4
Hermanni on kehittyvä työpaikka-alue, jonne on hyvät kulkuyhteydet. Kalasataman metroasema sijaitsee vain 400 metrin päässä Vanhan Talvitien kiinteistöstä.
CRE PREMISES
Puh. Näytä puhelinnumero 020 7290 710
Vantaankoskentie 14
01670 VANTAA
