Vuokrataan toimistotilat - Helsinki
Vanha Talvitie 11, Hermanni, 00580 Helsinki #10830938
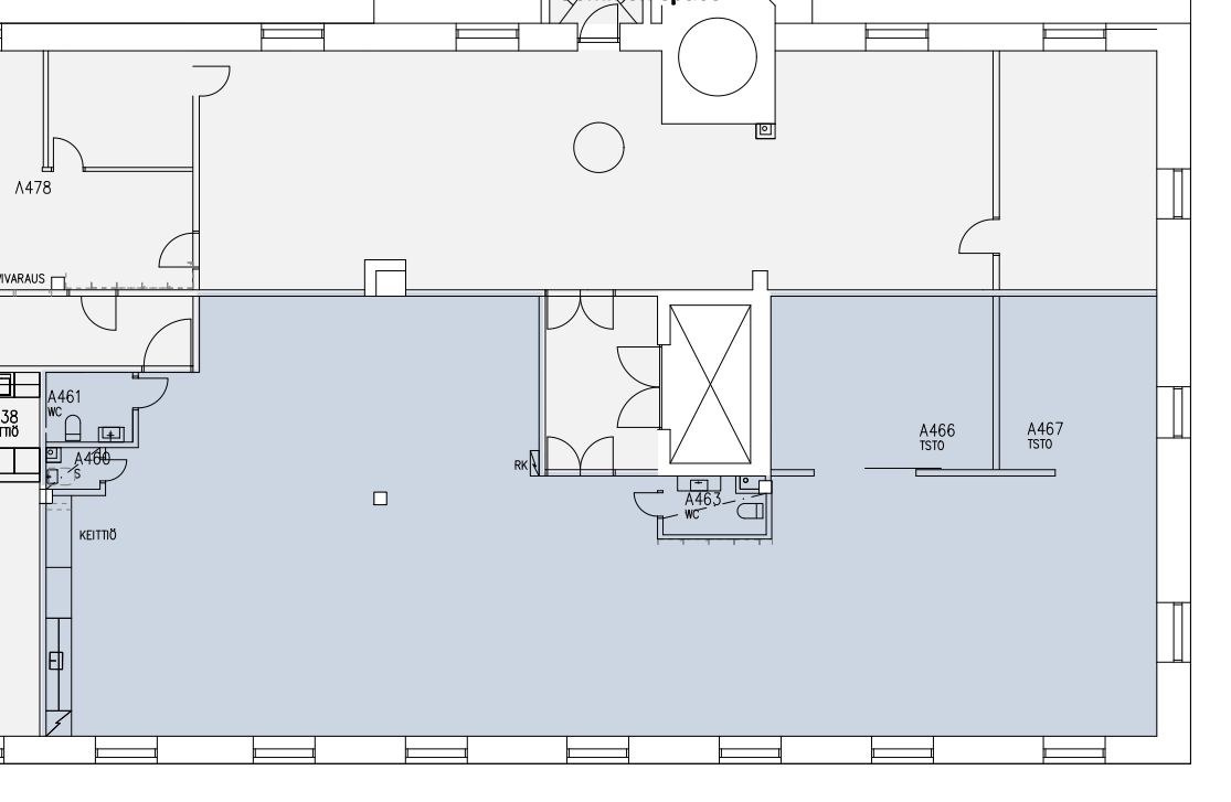
Vanhan puolen upea tila, josta näkymät Verkkosaarenkadulle. Tila on valoisa ja teollisuushenkinen kokonaisuus, jossa on runsaasti avointa työskentelytilaa, kaksi erillistä huonetta, keittiö sekä wc-tilat. Tila on heti vapaa, ja siihen on saatavilla ilmastointi, joka varmistaa miellyttävät työolosuhteet ympäri vuoden. Pohjaratkaisu on helposti muunneltavissa avo- tai kombitoimistoksi tarpeidenne mukaan.
Vanha Talvitie 11 sijaitsee Hermannissa, Vanhan Talvitien ja Verkkosaarenkadun kulmassa. Kauppakeskus Redin palvelut ovat kävelymatkan päässä.
Kiinteistö muodostuu kahdesta erillisestä rakennuksesta. Arkkitehtuuriltaan upea vanha osa (v. 1919) on nelikerroksinen ja uusi osa (v. 1991) on kuusikerroksinen. Rakennuksen vanhalta puolelta löytyy persoonallisia ja vähän erikoisempiakin toimitilaratkaisuja. Vuokrattavaa toimitilaa kiinteistössä on kaikkiaan noin 6 700 m2.
Rakennushistoriallisesti ja kaupunkikuvallisesti arvokkaassa rakennuksessa on alunperin ja vuosien saatossa toiminut mm. perunajauho- ja makeistehdas sekä rautasänky- ja metallikalustetehdas.
Lisätiedot 020 7290 710. Lisää kohteita www.premises.fi
Kohteella ei ole lain edellyttämää energiatodistusta tai energialuokka ei tiedossa.Kerros: 4
Hermanni on kehittyvä työpaikka-alue, jonne on hyvät kulkuyhteydet. Kalasataman metroasema sijaitsee vain 400 metrin päässä Vanhan Talvitien kiinteistöstä.
CRE PREMISES
Puh. Näytä puhelinnumero 020 7290 710
Vantaankoskentie 14
01670 VANTAA
