Vuokrataan toimistotilat, tuotantotilat, varastotilat - Helsinki
Ruosilantie 14, Konala, 00390 Helsinki #10830933
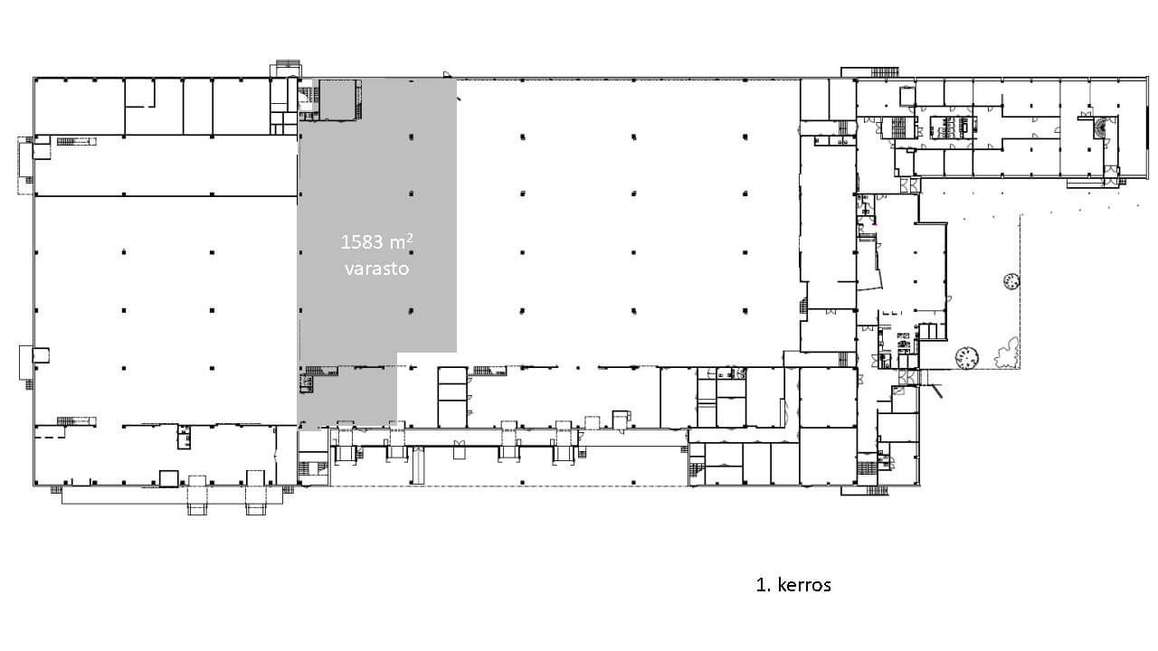
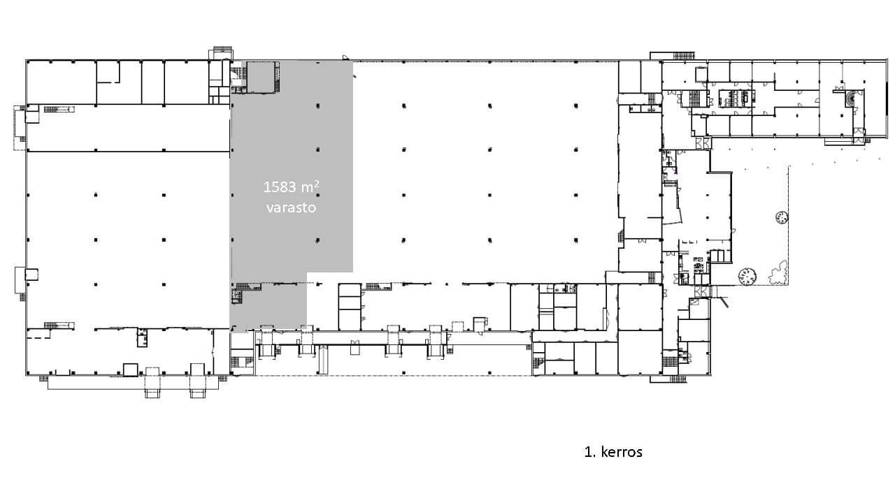
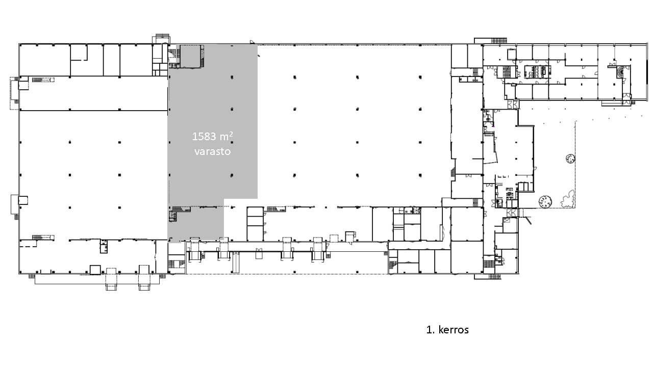
Vapautumassa 1.1.2026 kätevä 2223 mm2 kokonaisuus. Tila sisältää korkeaa varastoa 1583 m2, toimisto 218 m2 sekä siistiä ja kompaktia parvivarasto 422 m2 Varaston lastauslaituri nosto-ovella. Ollut ennen tapahtuma-alan toimijan varastona. Varasto vuokrataan toimiston ja parvivaraston yhteydessä. Toimistosta löytyy keittiö, wc- ja sosiaalitilat.
Vuonna 1971 rakennettu ja vuonna 2001 peruskorjattu Ruosilantie 14 kiinteistö sijaitsee Konalassa aivan Vihdintien vieressä heti Kehä I:n pohjoispuolella. Liikenteellisesti kohde on loistavalla paikalla.
Kiinteistö on varasto- ja toimistokiinteistö, jolla on runsaasti sekä kylmiä sekä sähkötolpallisia autopaikkoja pihalla. Varaston käyttäjiä palvelevat iso piha ja lastauslaituri sekä -taskut. Osa toimistotilasta on jäähdytettyä tilaa.
Kiinteistössä toimii lounasravintola joka vuokraa tarpeen mukaan myös neuvottelutilaa ja saunaosastoa.
Lisätietoja numerosta 020 7290 710. Lisää kohteita osoitteessa www.premises.fi.
Kohteella ei ole lain edellyttämää energiatodistusta tai energialuokka ei tiedossa.Kerros: 1-2
CRE PREMISES
Puh. Näytä puhelinnumero 020 7290 710
Vantaankoskentie 14
01670 VANTAA
