Vuokrataan varastotilat - Helsinki
Ruosilantie 14, Konala, 00390 Helsinki #10830922
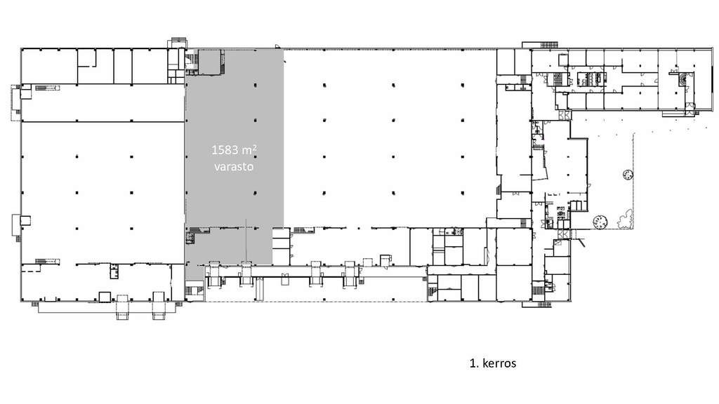
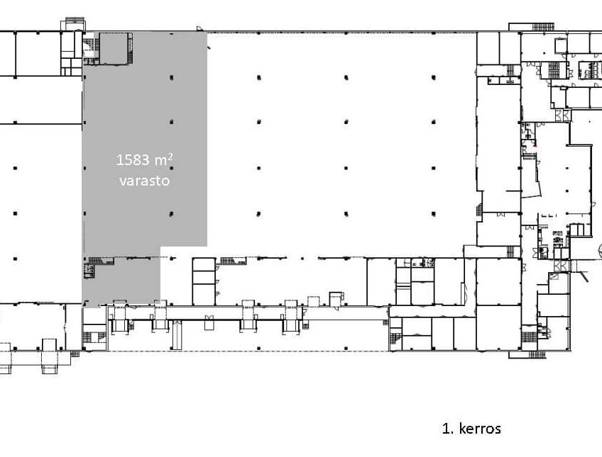
Varasto-/toimistotilaa Helsingin Konalassa.
Tämä 2223 m² tilakokonaisuus koostuu 1583 m² tuotanto-/varastohallista, 218 m² toimistotilasta sekä 422 m² siististä parvivarastosta. Hallitila on korkeaa ja siinä on lastauslaituri ja nosto-oviyhteys.
Ruosilantie 14 on vuonna 1971 rakennettu ja v. 2000-2001 peruskorjattu varasto- ja toimistokiinteistö loistavalla paikalla Konalan ytimessä. Kohteen toimitilat ovat muunneltavissa moneen käyttötarkoitukseen. Kiinteistössä toimii oma lounasravintola ja kohteelta löytyy myös saunaosasto ja sosiaalitiloja. Aidatulla pihalla on runsaasti parkkitilaa.
Kysy lisää numerosta 044 723 4700 tai info@bref.fi. Palvelumme on tilanhakijoille ilmainen.
Bureau Real Estate Finland Oy
Lars Sonckin kaari 16, 02600 Espoo
Näytä puhelinnumero
0447234700
Bureau Real Estate Finland Oy
https://www.bref.fi