Vuokrataan toimistotilat - Jyväskylä
Vapaudenkatu 60, Keskusta, 40100 Jyväskylä #10830916
Erittäin siistiä 3.krs toimistoa Matkakeskuksen vierestä
Osoite
Vapaudenkatu 60, 40100 Jyväskylä
Tilatyyppi
Toimistotilaa
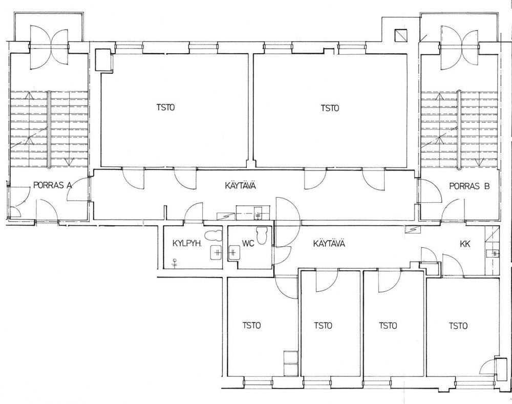
171 m2
Muuta
Vuokrataan remontoitu, erittäin siisti toimistotila Jyväskylän ydinkeskustasta rautatie- ja linja-autoaseman välittömässä läheisyydessä. Toimistossa jäähdytys ja hyvät tietoliikenneyhteydet!
Tila mahdollista vuokrata kokonaan 171m2 tai jakaa kahteen pienempään osaan 96m2 ja 75m2. Kumpaankin osaan tällöin oma sisäänkäynti.
Ota yhteyttä näyttöä varten!
Tila mahdollista vuokrata kokonaan 171m2 tai jakaa kahteen pienempään osaan 96m2 ja 75m2. Kumpaankin osaan tällöin oma sisäänkäynti.
Ota yhteyttä näyttöä varten!
Vapautuu
01.05.2025
Kerros
3
Ota yhteyttä
Infonia Oy
Kauppakatu 18 A, 40100 Jyväskylä
Näytä puhelinnumero
+358503523143
Katja Shemeikka
Pyydä lisätietoa
