Myydään tuotantotilat, varastotilat - Rusko
Ahorinteentie 1, Ahola, 21290 Rusko #10830901
Myytävänä hallikiinteistö Ruskon Ahorinteentiellä, Aholan teollisuusalueelta
Osoite
Ahorinteentie 1, 21290 Rusko
Tilatyyppi
Tuotantotilaa
650 m2
Varastotilaa
650 m2
Yhteensä
650 m2
Muuta
Myytävänä tuotanto- ja varastokäyttöön soveltuva hallikiinteistö Ruskon Ahorinteentiellä, Aholan teollisuusalueelta.
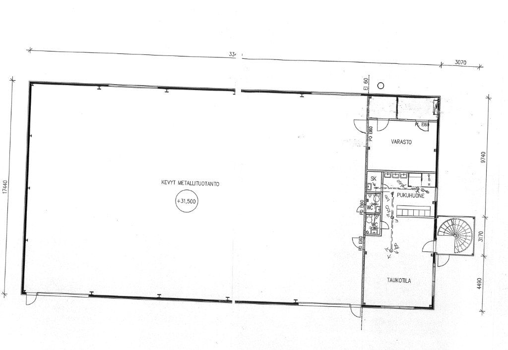
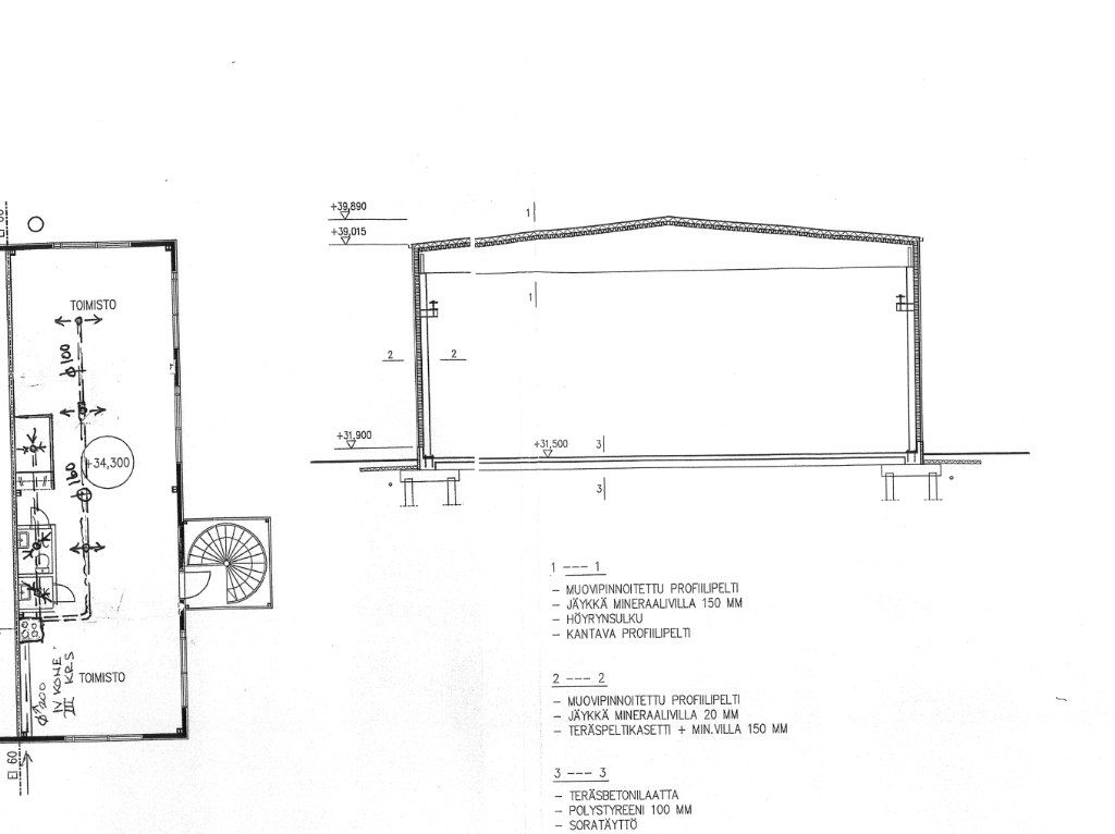
Siisti ja hyväkuntoinen hallirakennus on valmistunut vuonna 2008 ja se sijaitsee omalla noin 4800 m²:n kokoisella tontilla osoitteessa Ahorinteentie 1, Rusko. Teräsrakenteinen runko on vuorattu 20 cm Paroc-elementtiseinillä ja 30 cm eristekerroksella varustetulla kolminkertaisella huopakatolla. Hallin lattiassa on yksi kaivo, mutta öljynerotusta ei ole. Hallin lämmitys on toteutettu toimistotilan lämmöntalteenoton kautta, ja hallissa on pidetty talvisin noin +8 °C lämpötilaa. Mikäli tarvitaan lisää lämpöä, halliin on suositeltavaa asentaa esimerkiksi kaksi ilmalämpöpumppua.
Rakennuksen huoneistoala on noin 650 m² ja se jakautuu seuraavasti:
- 463 m² (vapaa korkeus 6,5m) hallitila
- 38 m² matalampi varastotila
- 57 m² sosiaalitila
- 95 m² toimistotila yläkerrassa, johon on portaiden kautta oma kulku rakennuksen päädyssä.
Hallissa on 5 tonnin siltanosturi (koukkukorkeus 5,5m) sekä kaksi korkeaa nosto-ovea (375 x 450 cm).
Sosiaalitilat alakerrassa sisältävät pukuhuonetilaa, suihkun, WC:n ja keittiön. Yläkerran toimistossa on keittiö- ja WC-varaus. Tilajako tarjoaa käytännöllisen kokonaisuuden tuotantoon ja varastointiin, ja lisäksi toimistotilat mahdollistavat hallinnon yhdistämisen samaan kokonaisuuteen.
Rakennuksen kyljessä oleva venekatos voidaan purkaa pois, ostajan niin halutessaan. Piha-alueelle on tuotu tiiltä täytemaaksi, tähän on haettu kunnalta lupa. Piha-alue on osittain asfaltoitu, ja liittymiä on periaatteessa kaksi, joista toinen on asfaltoitu.
Ahorinteentieltä on Turun kehätielle matkaa vain noin 3 kilometriä, joten sijainti on erinomainen.
Tontilla on käyttämätöntä rakennusoikeutta jäljellä n. 1200kem², rakennustehokkuusluku on 0,4. Lisäksi Ruskon kunta on kaavoittanut maata Ahorinteentien kupeesta toimitilakäyttöön, eli mikäli laajennustarpeita tulisi, lähes samankokoinen naapuritontti on myynnissä.
Tila vapautuu nykyisen omistajan käytöstä heti ostajan löydyttyä.
Hintapyyntö on 425.000⬠ja kaupan kohde on kiinteistö.
Tervetuloa tutustumaan, lisätietoja saat ottamalla yhteyttä välittäjään!
Siisti ja hyväkuntoinen hallirakennus on valmistunut vuonna 2008 ja se sijaitsee omalla noin 4800 m²:n kokoisella tontilla osoitteessa Ahorinteentie 1, Rusko. Teräsrakenteinen runko on vuorattu 20 cm Paroc-elementtiseinillä ja 30 cm eristekerroksella varustetulla kolminkertaisella huopakatolla. Hallin lattiassa on yksi kaivo, mutta öljynerotusta ei ole. Hallin lämmitys on toteutettu toimistotilan lämmöntalteenoton kautta, ja hallissa on pidetty talvisin noin +8 °C lämpötilaa. Mikäli tarvitaan lisää lämpöä, halliin on suositeltavaa asentaa esimerkiksi kaksi ilmalämpöpumppua.
Rakennuksen huoneistoala on noin 650 m² ja se jakautuu seuraavasti:
- 463 m² (vapaa korkeus 6,5m) hallitila
- 38 m² matalampi varastotila
- 57 m² sosiaalitila
- 95 m² toimistotila yläkerrassa, johon on portaiden kautta oma kulku rakennuksen päädyssä.
Hallissa on 5 tonnin siltanosturi (koukkukorkeus 5,5m) sekä kaksi korkeaa nosto-ovea (375 x 450 cm).
Sosiaalitilat alakerrassa sisältävät pukuhuonetilaa, suihkun, WC:n ja keittiön. Yläkerran toimistossa on keittiö- ja WC-varaus. Tilajako tarjoaa käytännöllisen kokonaisuuden tuotantoon ja varastointiin, ja lisäksi toimistotilat mahdollistavat hallinnon yhdistämisen samaan kokonaisuuteen.
Rakennuksen kyljessä oleva venekatos voidaan purkaa pois, ostajan niin halutessaan. Piha-alueelle on tuotu tiiltä täytemaaksi, tähän on haettu kunnalta lupa. Piha-alue on osittain asfaltoitu, ja liittymiä on periaatteessa kaksi, joista toinen on asfaltoitu.
Ahorinteentieltä on Turun kehätielle matkaa vain noin 3 kilometriä, joten sijainti on erinomainen.
Tontilla on käyttämätöntä rakennusoikeutta jäljellä n. 1200kem², rakennustehokkuusluku on 0,4. Lisäksi Ruskon kunta on kaavoittanut maata Ahorinteentien kupeesta toimitilakäyttöön, eli mikäli laajennustarpeita tulisi, lähes samankokoinen naapuritontti on myynnissä.
Tila vapautuu nykyisen omistajan käytöstä heti ostajan löydyttyä.
Hintapyyntö on 425.000⬠ja kaupan kohde on kiinteistö.
Tervetuloa tutustumaan, lisätietoja saat ottamalla yhteyttä välittäjään!
Vapautuu
Kysy
Siltanosturi
Ota yhteyttä
Tuloskiinteistöt Oy
Kauppiaskatu 11 C 23, 20100 Turku
Näytä puhelinnumero
(02) 274 3500
Juho Haapasalo
Commercial Real Estate Advisor
Näytä puhelinnumero
+358 44 491 4624
Jussi-Pekka Kouki
Partner, LKV
Näytä puhelinnumero
+358 40 527 7015
Pyydä lisätietoa
