Vuokrataan varastotilat - Helsinki
Ruosilantie 14, Konala, 00390 Helsinki #10830890
Ruosilantie 14 kiinteistö sijaitsee Konalassa aivan Vihdintien vieressä heti Kehä I:n pohjoispuolella liikenteellisesti loistavalla paikalla. Vuokrattavana on siistikuntoista varastotilaa lastauslaiturilla jossa kaksi nosto-ovea. Talosta on saatavilla myös toimistotilaa, viihtyisä lounasravintola sekä parkkipaikkoja. SOITA ja SOVI ESITTELY: 09 77 45 100.
Osoite
Ruosilantie 14, 00390 Helsinki
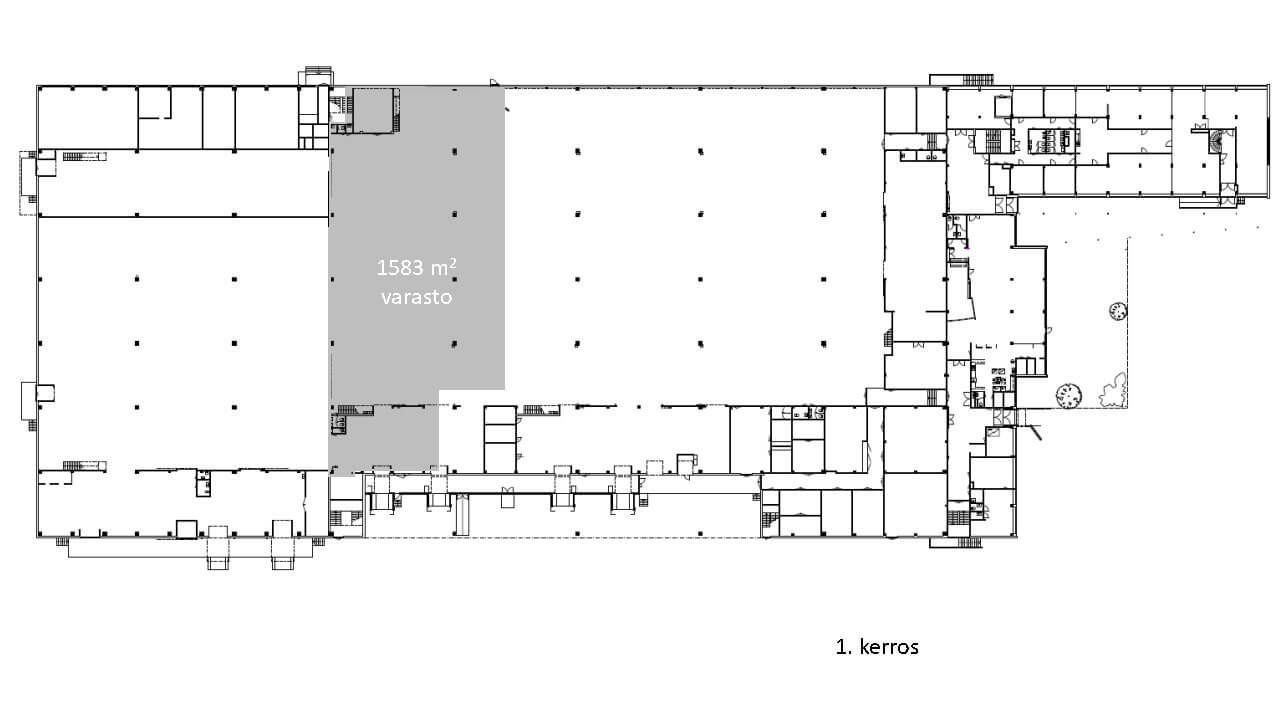
Tilatyyppi
Varastotilaa
1582 m2
Kiinteistö
Ruosilantie 14 on vuonna 1971 rakennettu ja v.2000-2001 peruskorjattu varasto- ja toimistokiinteistö. Se sijaitsee loistavalla paikalla Konalan ytimessä. Tilat ovat muunneltavissa moneen käyttötarkoitukseen. Kiinteistön aidatulla pihalla runsaasti parkkitilaa. Päästöttömällä kiinteistöllä on maalämpö sekä aurinkovoimala, ympäristösertifikaatti on BREEAM - Very Good.
Kiinteistössä on lounasravintola, saunaosasto ja sosiaalitilat. Mahdollisuus vuokrata varastotilaa pohjakerroksen lastauslaiturin läheisyydestä.
Kiinteistössä on lounasravintola, saunaosasto ja sosiaalitilat. Mahdollisuus vuokrata varastotilaa pohjakerroksen lastauslaiturin läheisyydestä.
Sijainti
Kiinteistö sijaitsee Vihdintien välittömässä läheisyydessä ja kehä I:n helposti saavutettavissa. Konalaan hyvät bussiyhteydet ja Malminkartanon juna-asema sijaitsee 1,3 km päässä.
Ympäristö
Logistiikka - teollisuus
Pysäköinti
Pihalla.
Palvelut
Talossa lounasravintola
Kulkuyhteydet
Vihdintie, Kehä ykkönen
Lisätietoa saneerauksista
Täydellisesti peruskorjattu v. 2001
Vapautuu
Heti
Rakennusvuosi
1971
Saneerausvuosi
2001
Kerros
1 / 3
Energiatehokkuusluokka
Ei lain edellyttämää energiatodistusta
Näkyvällä paikalla
Lastauslaituri
Ota yhteyttä
Senaatin Notariaatti Oy LKV
Lämmittäjänkatu 4 A
FIN-00880 Helsinki
Tel:
Näytä puhelinnumero
+358 9 7745 100
Pyydä lisätietoa
