Vuokrataan toimistotilat - Lahti
Kasarmikatu 5, 15700 Lahti #10830866
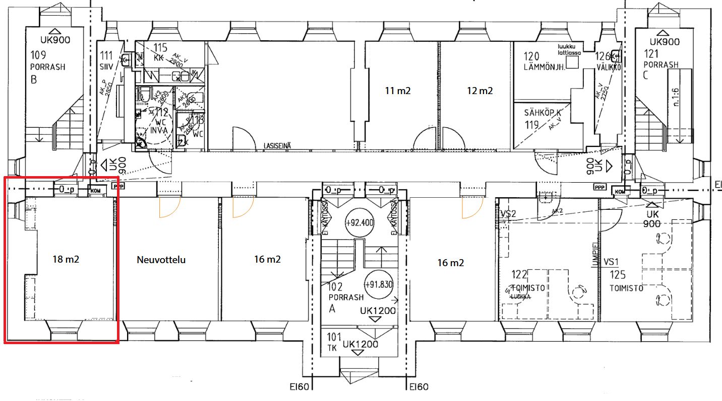
KASARMIKATU 5 - toimistotila 18m2
Tämä valoisa ja rauhallinen kulmahuone sijaitsee Luutnantti-rakennuksen pientoimistoalueen 1. krs.
Tilan suuresta ikkunasta avautuu kaunis näkymä ihastuttavalle lehmuskujalle ja pienempi ikkuna pohjoiseen. Sisääntulo joko näyttävästä pääportaikosta tai suoraan sisäpihan portaikosta. Tunnelman kruunaa alkuperäinen lautalattia ja yli 3 m huonekorkeus.
Tilat ovat esteettömät! Tiloja tarjolla 11-40m2. KYSY LISÄÄ!
Pientoimistoalueen vuokralaisilla on käytössään veloituksetta:
- yhteiskäyttötilat (mm. suihku ja wc-tilat)
- kahvi-/taukotilat (kahviautomaatti kahveineen)
- neuvottelutilat
- Wi-Fi
- kopiokone
Lisätiedot ja kohdenäytöt: p. 040 7070 321 / HeikkiKerros: 1
CRE PREMISES
Puh. Näytä puhelinnumero 020 7290 710
Vantaankoskentie 14
01670 VANTAA
