Vuokrataan toimistotilat - Lahti
Kasarmikatu 5, 15700 Lahti #10830864
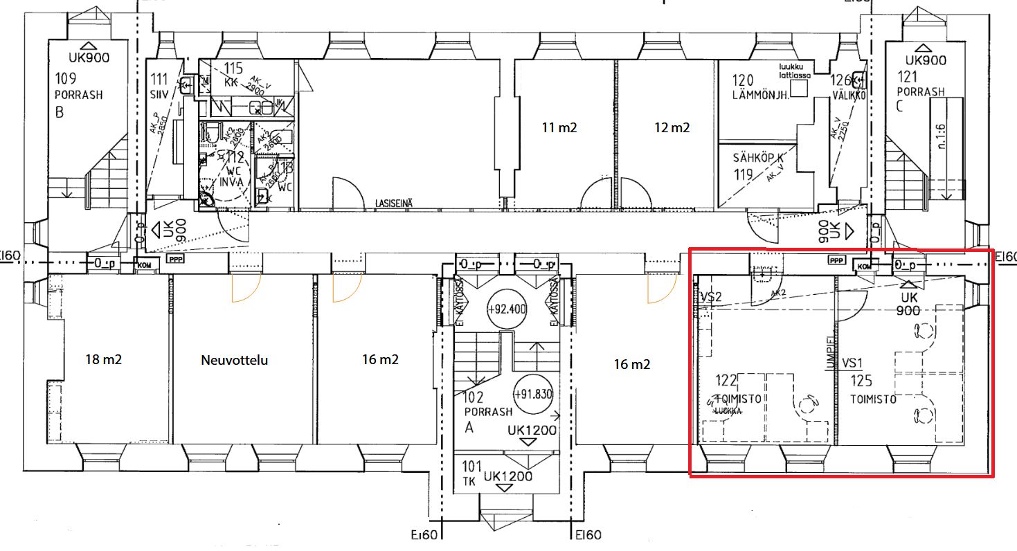
KASARMIKATU 5 - toimistotila 40m2
Tämä valoisa ja rauhallinen kulmatila sijaitsee Luutnantti-rakennuksen pientoimistoalueen 1. krs.
Tila koostuu kahdesta isosta huoneesta joita yhdistää väliovi. Toisessa huoneessa kaksi suurta ikkunaa joista avautuu kaunis näkymä ihastuttavalle lehmuskujalle. Kulmahuoneessa suuri ikkuna lehmuskujalle ja pienempi ikkuna etelään. Toisessa huoneessa on myös pieni säilytyskomero. Huoneistoon on sisäänkäynti päärapun lisäksi pihanpuoleisesta kulmarapusta.
Tunnelman kruunaa alkuperäinen lautalattia ja yli 3 m huonekorkeus.
Tilat ovat esteettömät! Tiloja tarjolla 11-40m2. KYSY LISÄÄ!
Pientoimistoalueen vuokralaisilla on käytössään veloituksetta:
- yhteiskäyttötilat (mm. suihku ja wc-tilat)
- kahvi-/taukotilat (kahviautomaatti kahveineen)
- neuvottelutilat
- Wi-Fi
- kopiokone
Lisätiedot ja kohdenäytöt: p. 040 7070 321 / HeikkiKerros: 1
CRE PREMISES
Puh. Näytä puhelinnumero 020 7290 710
Vantaankoskentie 14
01670 VANTAA
