Vuokrataan toimistotilat - Lahti
Kasarmikatu 5, 15700 Lahti #10830862
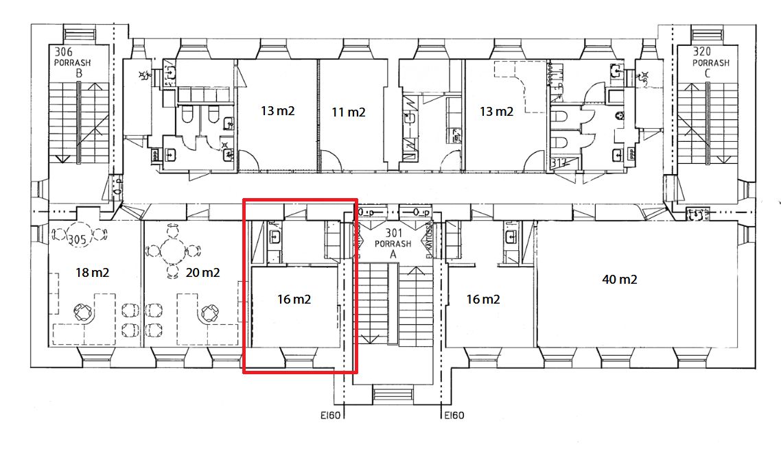
KASARMIKATU 5 - toimistotila 16m2
Tämä valoisa ja rauhallinen toimistotila sijaitsee Luutnantti-rakennuksen pientoimistoalueen 3. krs.
Tilan suuresta ikkunasta avautuu kaunis näkymä ihastuttavalle lehmuskujalle. Sisääntulossa vaatekaapit ja oma käsienpesuallas. Tunnelman kruunaa alkuperäinen lautalattia ja yli 3 m huonekorkeus.
Tilat ovat esteettömät. Tiloja tarjolla 11-40m2. KYSY LISÄÄ!
Pientoimistoalueen vuokralaisilla on käytössään veloituksetta:
- yhteiskäyttötilat (mm. suihku ja wc-tilat)
- kahvi-/taukotilat (kahviautomaatti kahveineen)
- neuvottelutilat
- Wi-Fi
- kopiokone
Lisätiedot ja kohdenäytöt: p. 040 7070 321 / HeikkiKerros: 3
CRE PREMISES
Puh. Näytä puhelinnumero 020 7290 710
Vantaankoskentie 14
01670 VANTAA
