Vuokrataan tuotantotilat - Jyväskylä
Yritystie 5, Seppälänkangas, 40320 Jyväskylä #10830859
Suurella piha-alueella oleva peruskorjattava varasto-, tuotanto-, toimistotilaa
Osoite
Yritystie 5, 40320 Jyväskylä
Tilatyyppi
Tuotantotilaa
1762 m2
Muuta
Vuokrataan teollisuuskiinteistö suurella asfaltoidulla ja aidatulla piha-alueella Seppälänkankaalta. Omistaja tekee seuraavat perusparannukset kiinteistöön ennen seuraavaa vuokralaista:
- Hallien kattojen uusinta
- Julkisivut uusitaan (Ruukki pelti-villa-pelti elementit)
- nosto-ovet uusitaan
- piha-alueet siistitään, mm. aitojen korjaus, kasvillisuuden siistiminen
- sokkeleiden uusinta
- salaojien asennus
Kiinteistön neliöt jakaantuvat seuraavasti:
1.krs
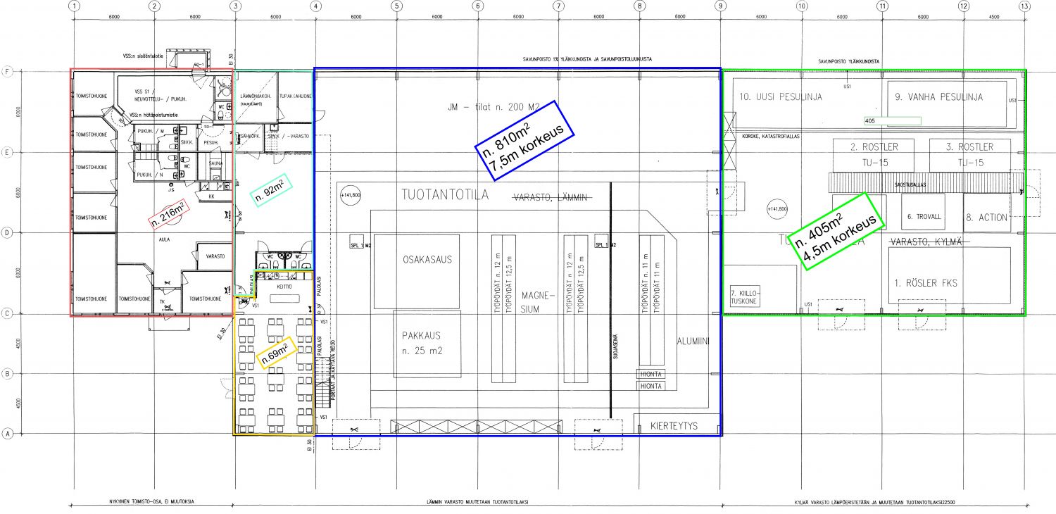
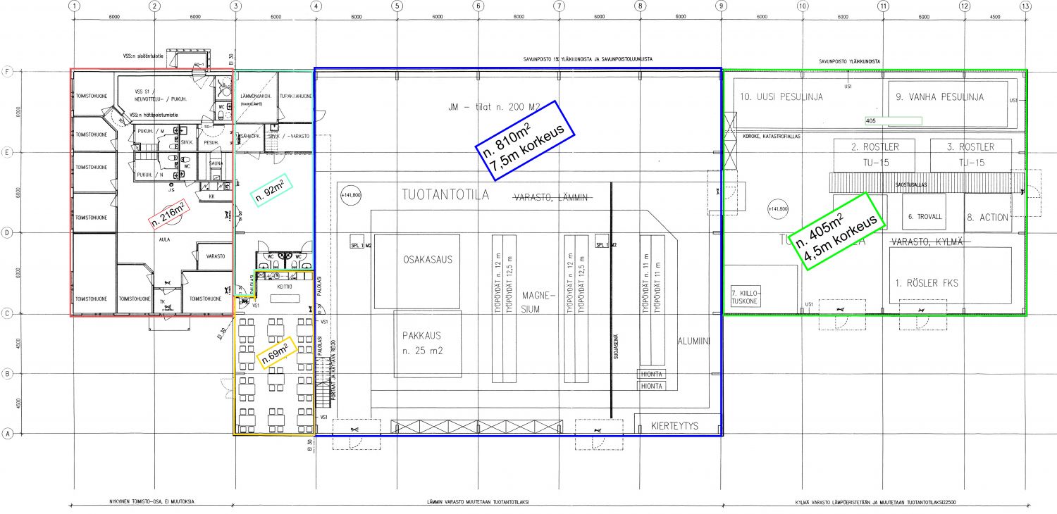
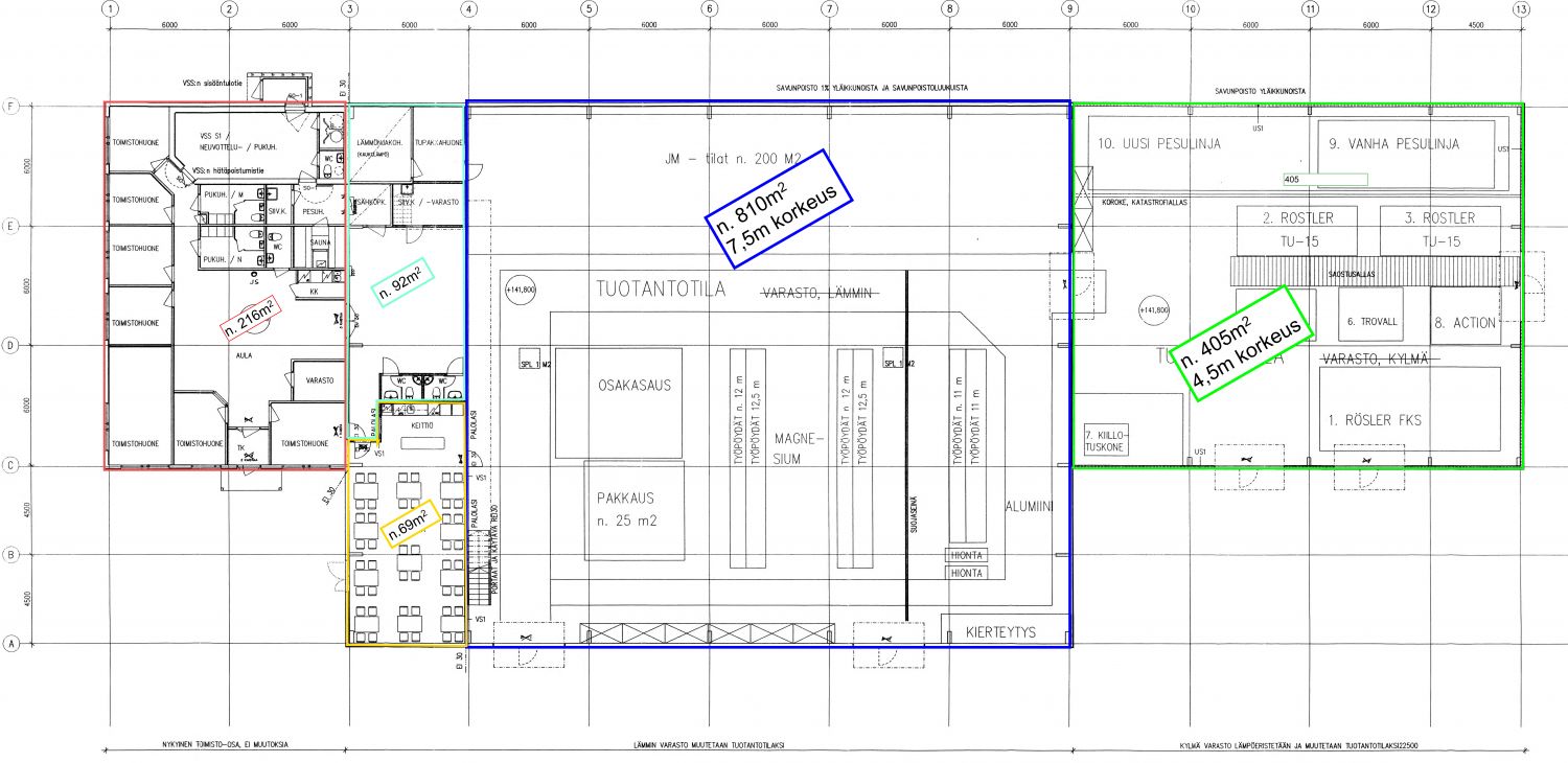
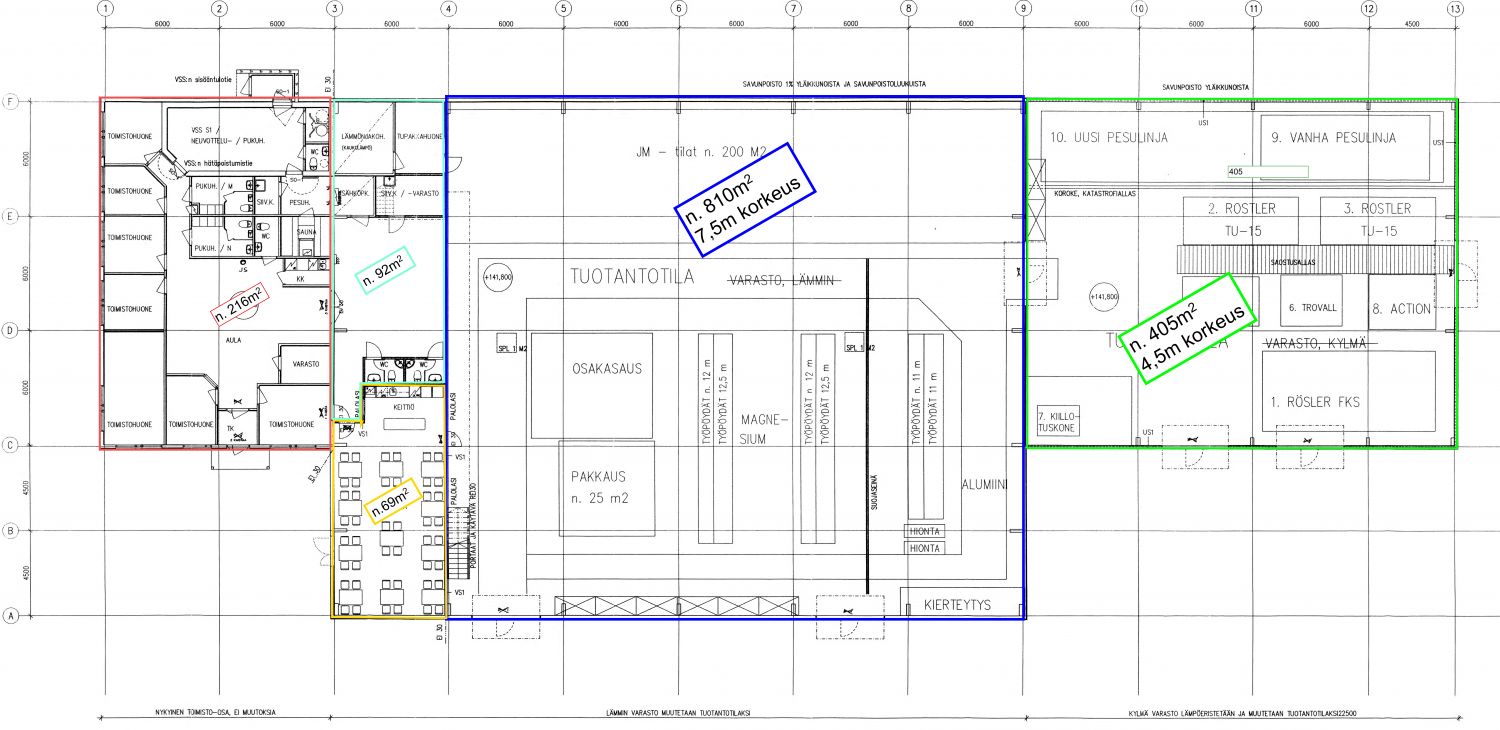
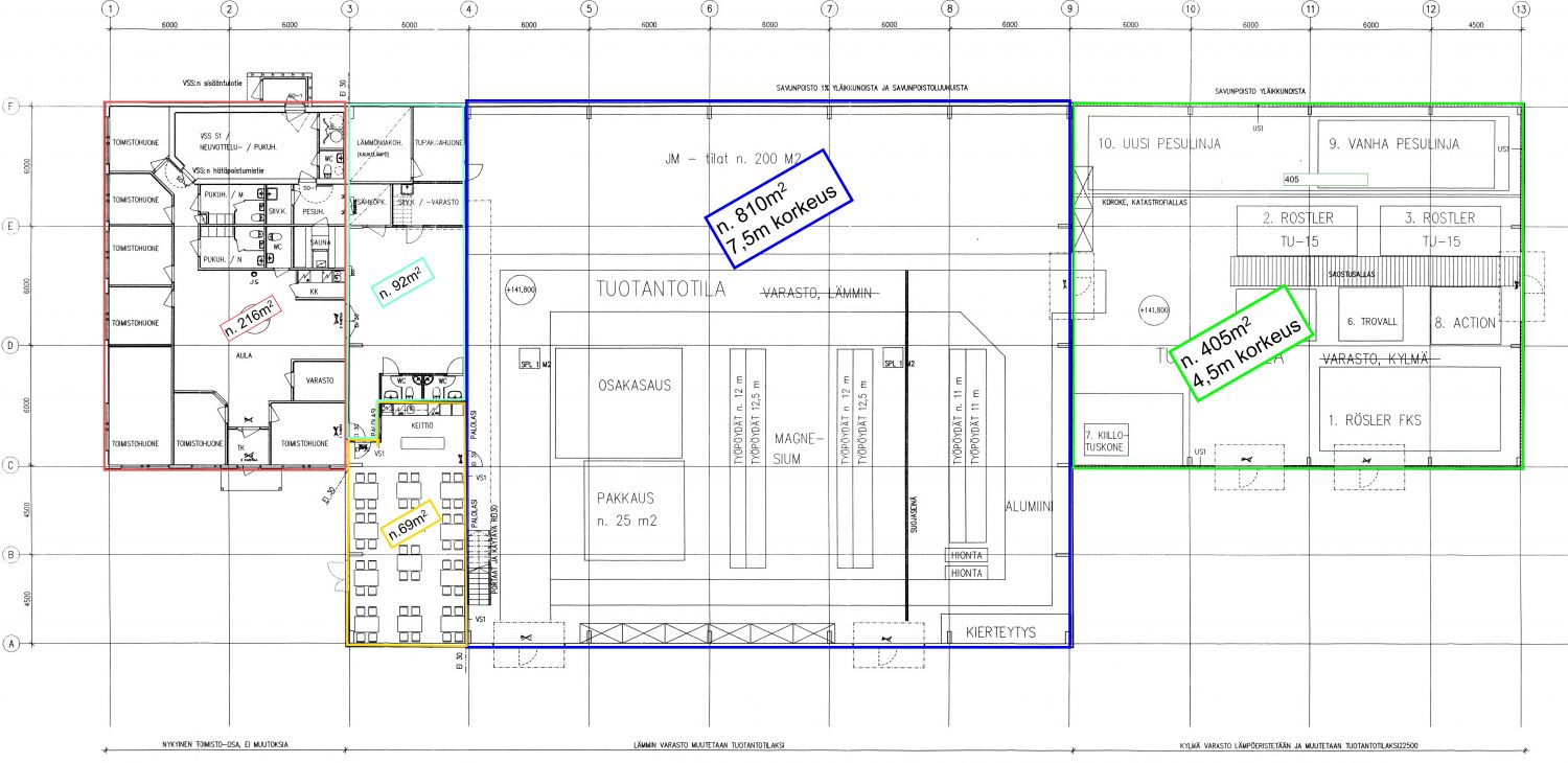
- Toimistotilaa 216m2
- Sosiaalitilaa 100m2
- Tauko- ja ruokailutila 69m2
- Korkea teollisuushalli 810m2
- Matalampi teollisuushalli 405m2
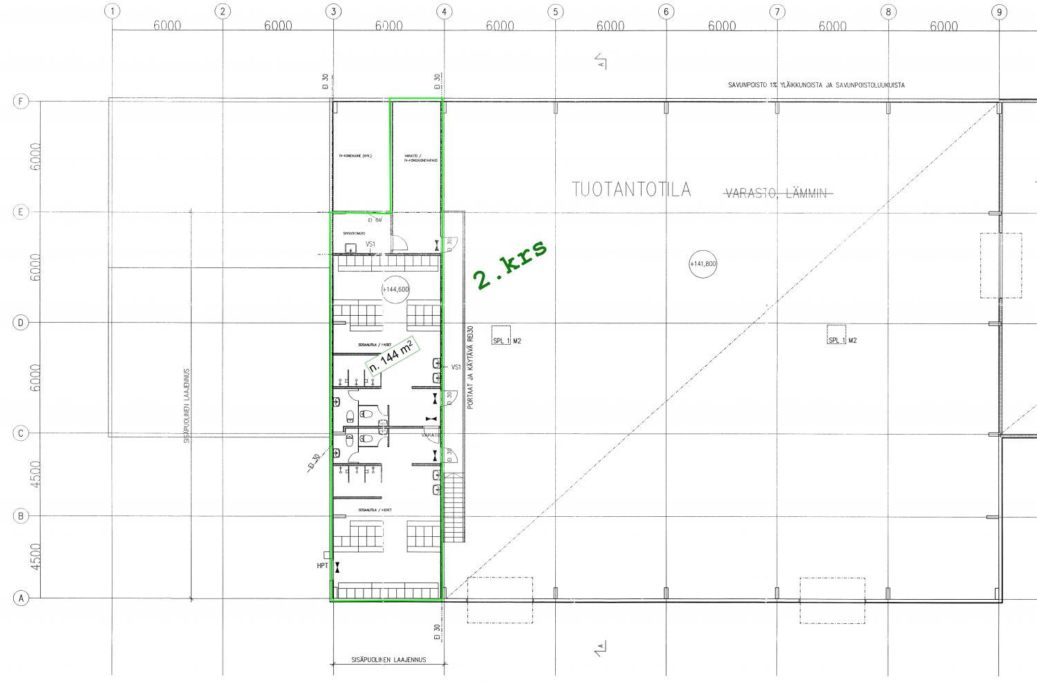
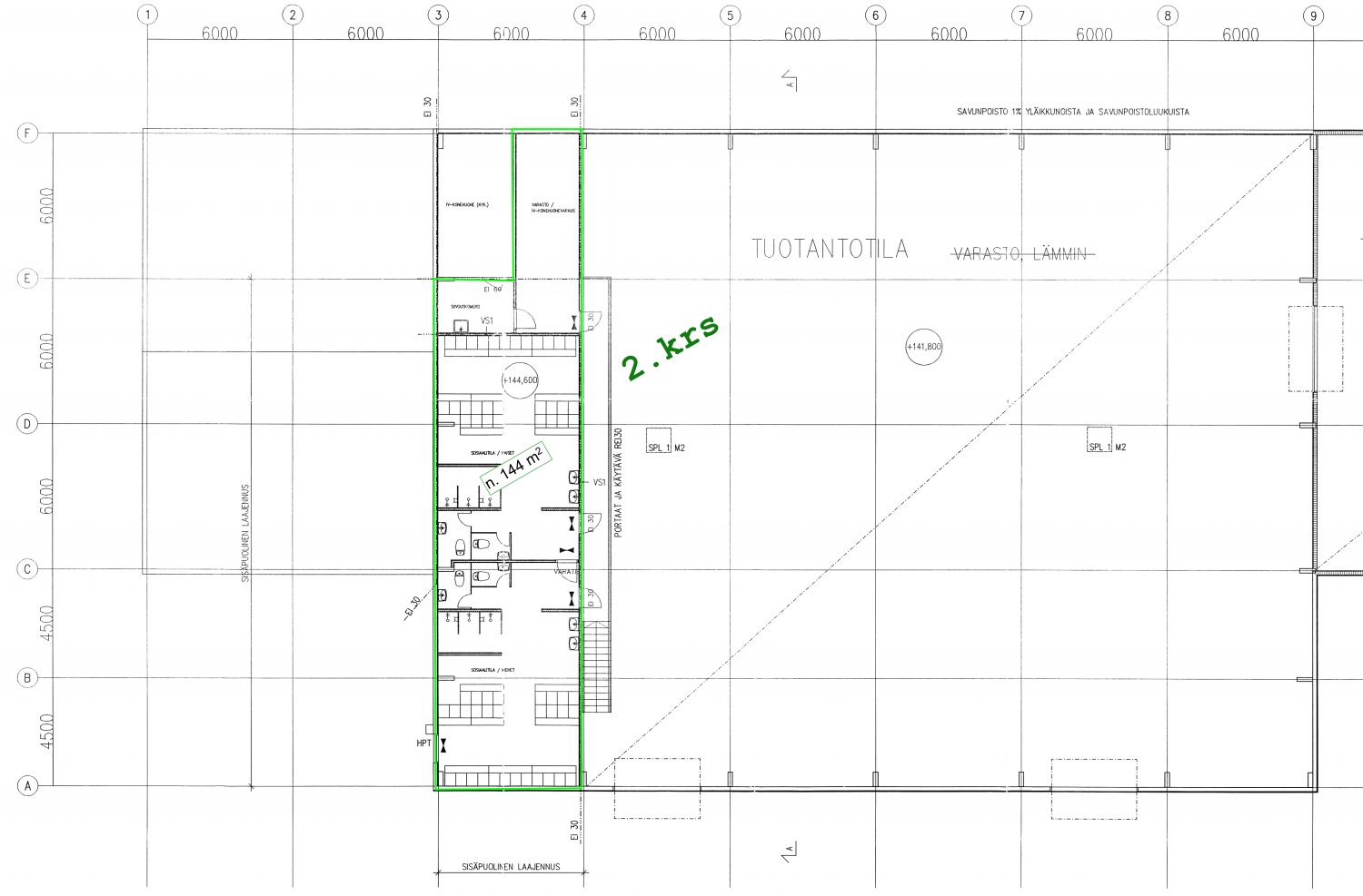
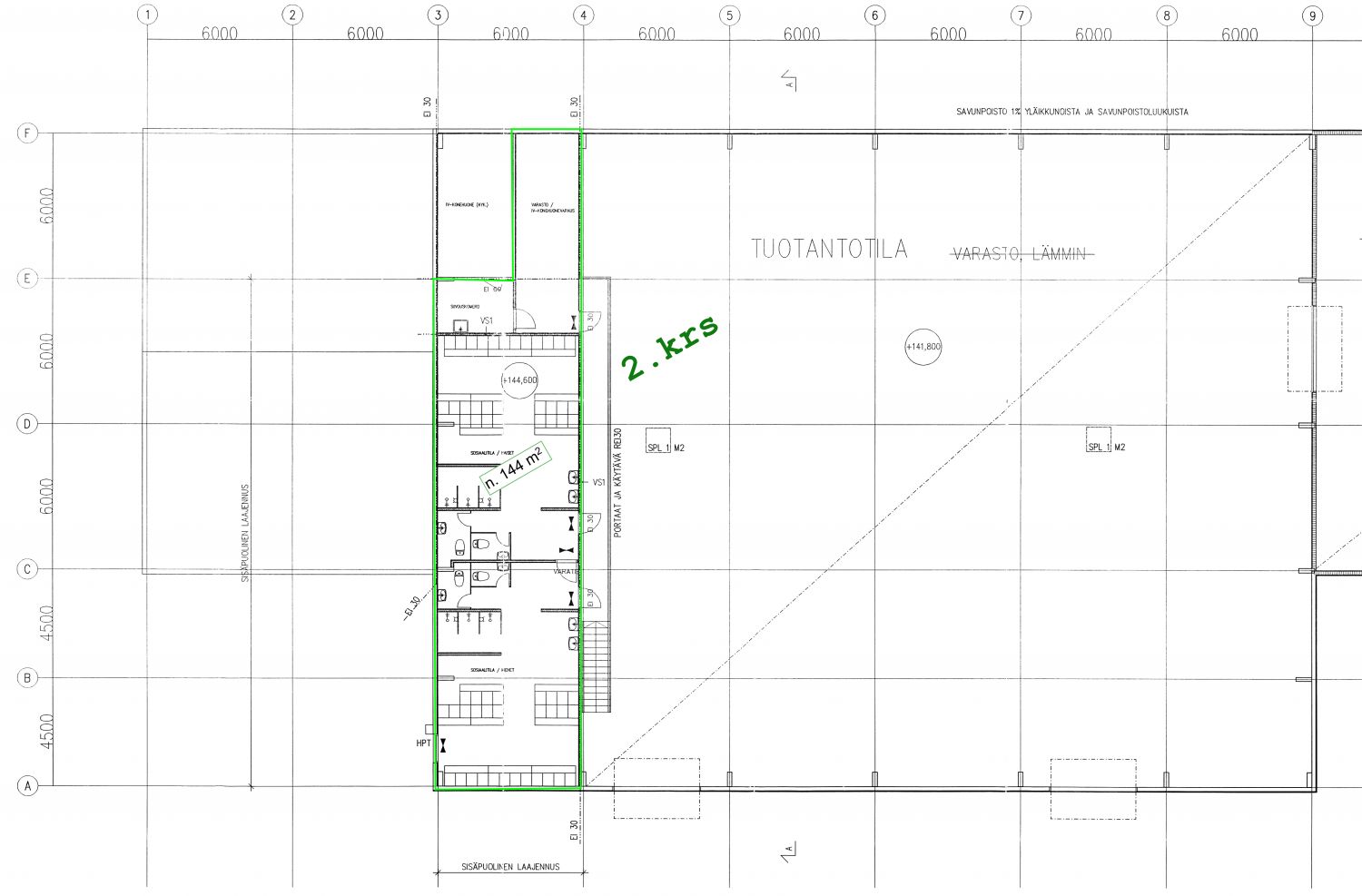
2.krs
- Pukuhuonetilat sekä varasto 144m2
Vuokrattavat tilat yhteensä:
- noin 1762m2
- piha-alue 8238m2
Kiinteistön edessä lämmitystolpalliset autopaikat henkilökunnalle ja asiakkaille.
- Hallien kattojen uusinta
- Julkisivut uusitaan (Ruukki pelti-villa-pelti elementit)
- nosto-ovet uusitaan
- piha-alueet siistitään, mm. aitojen korjaus, kasvillisuuden siistiminen
- sokkeleiden uusinta
- salaojien asennus
Kiinteistön neliöt jakaantuvat seuraavasti:
1.krs
- Toimistotilaa 216m2
- Sosiaalitilaa 100m2
- Tauko- ja ruokailutila 69m2
- Korkea teollisuushalli 810m2
- Matalampi teollisuushalli 405m2
2.krs
- Pukuhuonetilat sekä varasto 144m2
Vuokrattavat tilat yhteensä:
- noin 1762m2
- piha-alue 8238m2
Kiinteistön edessä lämmitystolpalliset autopaikat henkilökunnalle ja asiakkaille.
Vapautuu
01.01.2026
Rakennusvuosi
1992
Ota yhteyttä
Infonia Oy
Kauppakatu 18 A, 40100 Jyväskylä
Näytä puhelinnumero
+358 407579731
Mikko Hirvi
Näytä puhelinnumero
+358 407579731
Pyydä lisätietoa
