Myydään toimistotilat, liiketilat - Helsinki
Kimmontie 3, Käpylä, 00610 Helsinki #10830835
Käpylän kaupunginosassa, katutason kompakti toimisto/liiketila.
Osoite
Kimmontie 3, 00610 Helsinki
Tilatyyppi
Toimistotilaa
55 m2
Liiketilaa
55 m2
Yhteensä
55 m2
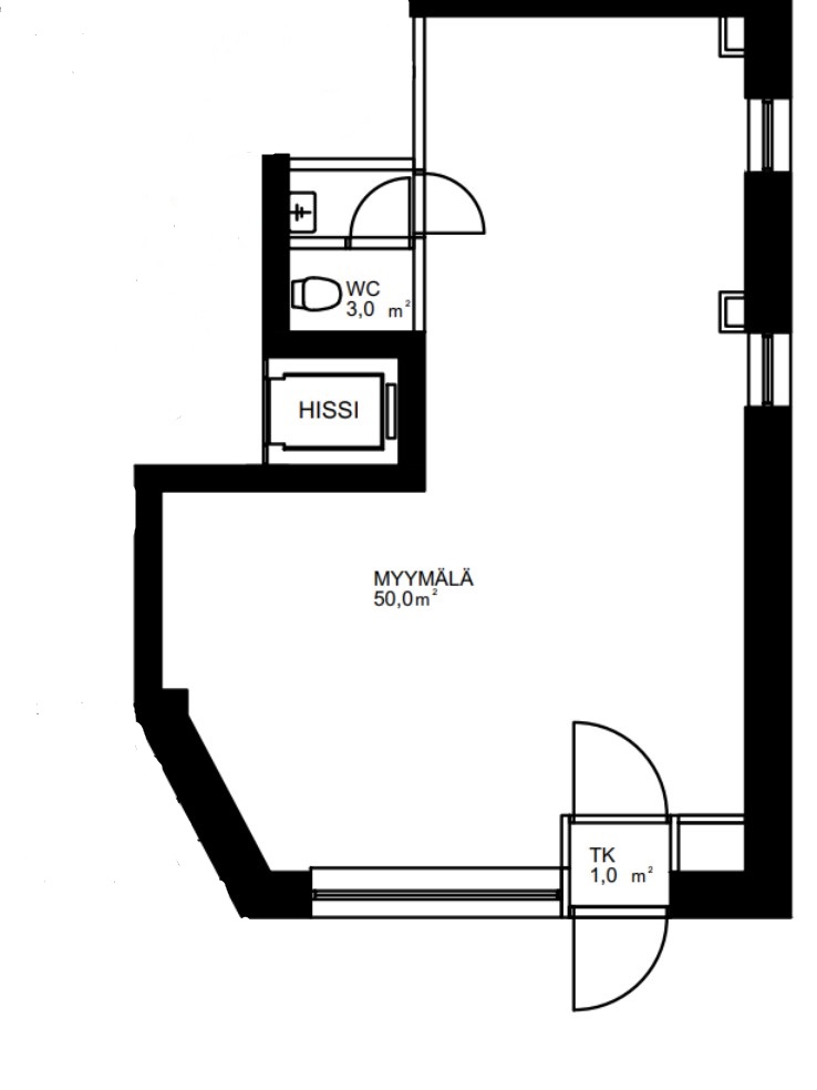
Pohjapiirros
Kiinteistö
Neljä kerroksisen kiinteistön kivijalassa oleva liikehuoneisto.
Sijainti
Hyvällä sijainnilla Mäkelänkadun läheisyydessä Käpylässä.
Vapautuu
Heti
Energiatehokkuusluokka
E2018
Katutasossa
Näkyvällä paikalla
Ota yhteyttä
Suomen Kiinteistöinstituutti Oy
Svinhufvudintie 1
00570 HELSINKI - KULOSAARI
Tom Dahlström Näytä puhelinnumero 050 66 959
http://www.kiinteistoinstituutti.fiPyydä lisätietoa
