Vuokrataan toimistotilat - Espoo
Keilaranta 6, Keilaniemi, 02150 Espoo #10830752
Tyylikästä ja modernia toimitilaa Keilaniemestä.
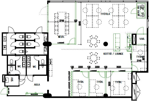
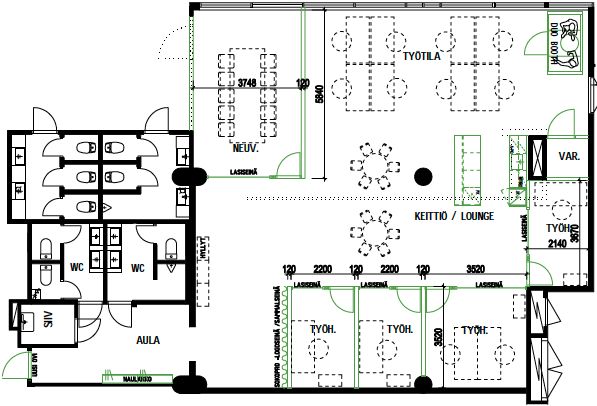
Tämä hyväkuntoinen 200 m² toimistotila sijaitsee kiinteistön katutasossa. Tilassa on tavallista korkeampi huonekorkeus. Tila soveltuu hyvin toimistoksi tai showroomkäyttöön. Toimistossa on avotilaa, huoneita sekä omat keittiö- ja wc-tilat. Vapautuminen tammikuussa 2026.
Keilaranta 6 tarjoaa valoisat ja avarat toimitilat, joita voidaan muunnella yrityksen tarpeiden mukaan. Kiinteistössä on jäähdyttävä ilmanvaihto ja nykyaikainen infrastruktuuri. Kiinteistöissä on tarjolla monipuoliset palvelut, kuten kuntosali ja kaksi lounasravintolaa. Nykyaikaiset aulapalvelut, toistakymmentä kokous- ja edustustilaa sekä yli 100:n hengen auditorio. Kiinteistössä on oma pysäköintihalli.
Kysy lisää numerosta 044 723 4700 tai info@bref.fi. Palvelumme on tilanhakijoille ilmainen.
Hissi
Bureau Real Estate Finland Oy
Lars Sonckin kaari 16, 02600 Espoo
Näytä puhelinnumero
0447234700
Bureau Real Estate Finland Oy
https://www.bref.fi