Vuokrataan toimistotilat - Helsinki
Mikonkatu 8, Kluuvi, 00100 Helsinki #10830746
Tehokasta toimistotilaa huippupaikalta
Osoite
Mikonkatu 8, 00100 Helsinki
Tilatyyppi
Toimistotilaa
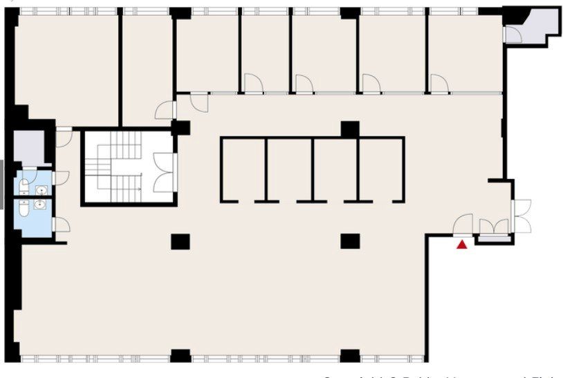
309 m2
Muuta
Vuokrattavana 309 m² kustannustehokasta ja nykyaikaista toimistotilaa Helsingin ydinkeskustassa. Tilassa on muunneltava pohjaratkaisu ja viimeistely, mikä mahdollistaa sen räätälöinnin käyttäjän tarpeiden mukaan.
Kohde sijaitsee erinomaisella paikalla, aivan keskustan palveluiden ja julkisten liikenneyhteyksien äärellä. Vuokra-aika on joustava, ja myös lyhytaikaiset sopimukset ovat mahdollisia.
Kuvat ovat referenssikuvia kiinteistön muista tiloista.
Tervetuloa tutustumaan, varaathan välittäjältä oman esittelyaikasi. Voit kysyä meiltä myös muita sopivia vaihtoehtoja, kauttamme löydät juuri Teidän tarpeisiinne sopivat tilat. Palvelumme on tilanhakijalle veloitukseton!
Kohde sijaitsee erinomaisella paikalla, aivan keskustan palveluiden ja julkisten liikenneyhteyksien äärellä. Vuokra-aika on joustava, ja myös lyhytaikaiset sopimukset ovat mahdollisia.
Kuvat ovat referenssikuvia kiinteistön muista tiloista.
Tervetuloa tutustumaan, varaathan välittäjältä oman esittelyaikasi. Voit kysyä meiltä myös muita sopivia vaihtoehtoja, kauttamme löydät juuri Teidän tarpeisiinne sopivat tilat. Palvelumme on tilanhakijalle veloitukseton!
Vapautuu
Kysy
Kerros
4
Ota yhteyttä
Tuloskiinteistöt Oy
Rikhardinkatu 2 B 5, 00130 Helsinki
Näytä puhelinnumero
(09) 6841 620
Nina Meyke
Commercial Real Estate Advisor
Näytä puhelinnumero
+358 50 466 1519
Otto Ahtola
Commercial Real Estate Advisor
Näytä puhelinnumero
+358 40 042 2830
Pyydä lisätietoa
