Vuokrataan liiketilat - Lahti
Mariankatu 12, Keskusta Lahti, 15110 Lahti #10830685
Vuokrataan liiketilaa Lahden keskustasta.
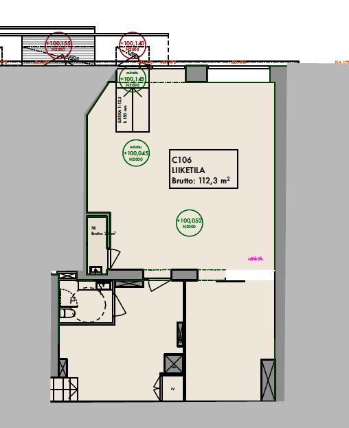
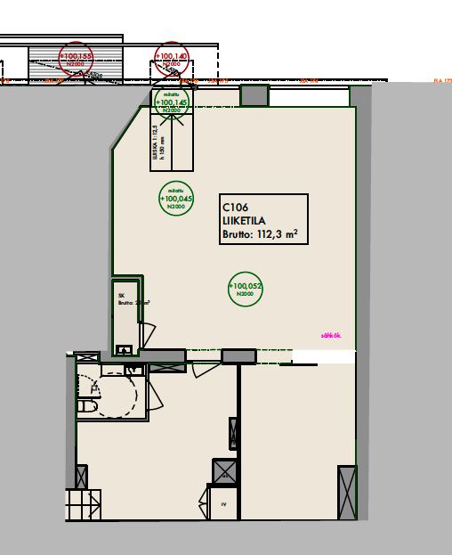
Tämä 112,5 m² liiketila sijaitsee kiinteistön katutasossa. Tilaan on sisäänkäynti suoraan kadulta. Tämä tila ei sovellu ravintola-, kahvila- tai parturi-kampaamotoimintaan, This premise is not suitable for a restaurant, cafeteria or a barber shop. Vapautuminen 2.2.2026.
Mariankatu 12 on asuinkiinteistö, jonka katutasossa on liiketiloja. Kiinteistöllä on erinomainen sijainti Mariankadun ja Aleksanterinkadun kulmassa, torin laidalla. Alueella on monipuoliset palvelut ja lukuisia lounasravintoloita.
Kysy lisää numerosta 044 723 4700 tai info@bref.fi. Palvelumme on tilanhakijoille ilmainen.
Bureau Real Estate Finland Oy
Lars Sonckin kaari 16, 02600 Espoo
Näytä puhelinnumero
0447234700
Bureau Real Estate Finland Oy
https://www.bref.fi