Vuokrataan toimistotilat - Espoo
Keilaniementie 1, Keilaniemi, 02150 Espoo #10830684
Vuokrattavana valoisaa ja modernia toimitilaa Keilaniemessä.
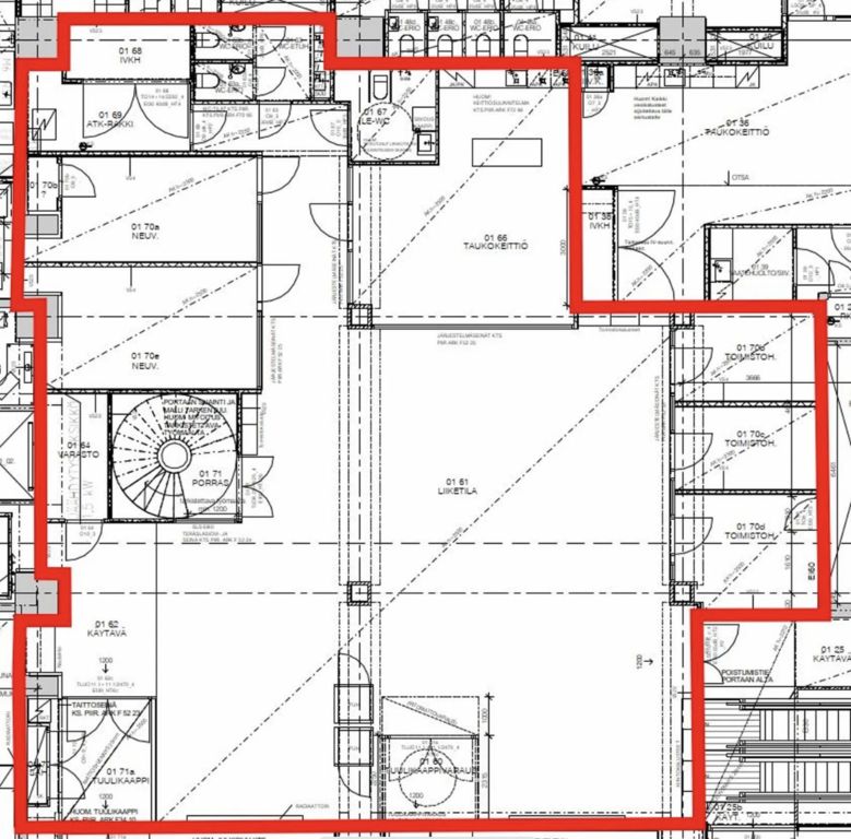
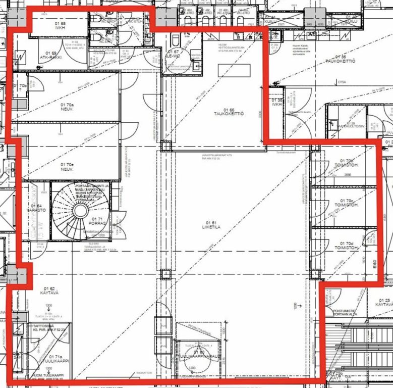
Tämä muuttovalmis 337 m² toimistotila sijaitsee kiinteistön 1. kerroksessa. Tilassa on avotilaa noin 20 henkilölle ja 3 työhuonetta/vetäytymistilaa sekä 2 isompaa 6-8 henkilön neuvotteluhuonetta. Tilassa on lisäksi 2 kpl liikuteltavaa puhelinkoppia. Viihtyisä taukotila on eriytetty lasiseinillä. Toimistoon on oma sisäänkäynti suoraan jalkakäytävältä.
Keilaniementie 1 eli Finago Tower sijaitsee Espoon Keilaniemessä, hyvien liikenneyhteyksien varrella. Tämä 20-kerroksinen kiinteistö on yksi Suomen tunnetuimmista toimistorakennuksista. Kiinteistön toimistotilat on saneerattu nykyaikaiseksi ja kiinteistössä toimii mm. lounasravintola, aulapalvelu ja kuntosali. Kiinteistössä on pysäköintihalli ja sähköautojen latauspaikkoja.
Kysy lisää numerosta 044 723 4700 tai info@bref.fi. Palvelumme on tilanhakijoille ilmainen.
Hissi
Bureau Real Estate Finland Oy
Lars Sonckin kaari 16, 02600 Espoo
Näytä puhelinnumero
0447234700
Bureau Real Estate Finland Oy
https://www.bref.fi