Vuokrataan liiketilat, tuotantotilat, varastotilat - Riihimäki
Voimalankatu 6, Jokikylä, 11130 Riihimäki #10830574
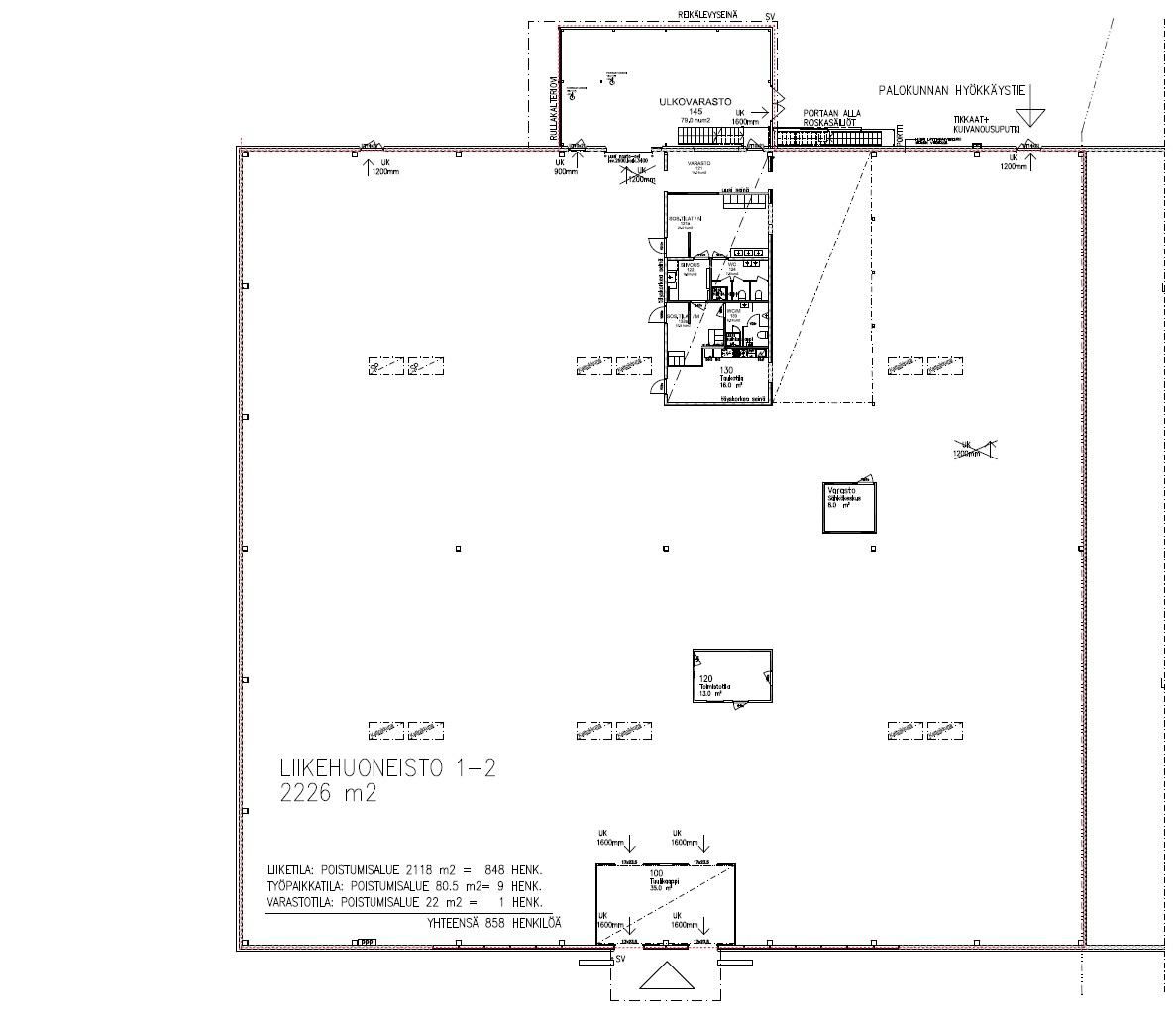
Vuokrataan katutason 2 226 m² moderni, valoisa sekä jäähdytetty liike-/myymälätila Riihimäen Retail Park Neutronista!
Tämä katutason tila on remontoitu v.2023 jolloin tilaan on mm. uusittu led- valaistus sekä keittiö, ja lattiat on hiottu alkuperäiselle mosaiikkibetonille. Tilan vapaa korkeus on 4,5m (ristikoiden välissä 6m) sekä tilassa on erillinen toimistohuone, taukohuone/keittiö sekä hyvät sosiaalitilat WC- tiloineen ja suihkuineen. Tilaan on asiakaskäynti sekä suuret ikkunat etupihalta ja tilan takaosassa on nosto- ovi ja lastauskatos.
Tarpeen mukaan tilaan on mahdollista lisätä nosto- ovia ja tehdä muita tarvittavia muutostöitä. Tilaan on mahdollista myös yhdistää viereinen vapaa 379 m² tila, jolloin tilakooksi muodostuu 2 605 m².
Retail Park Neutroni on vuonna 2008 valmistunut hyväkuntoinen ja siisti liikerakennus lähellä Riihimäen keskustaa ja rautatieasemaa. Paikalle on helppo saapua julkisilla liikenneyhteyksillä ja omalla autolla. Pysäköintipaikkoja on runsaasti kiinteistön edessä piha-alueella, ja kiinteistöllä on latausasemat sähköautoille. Retail Park Neutroni muodostaa vieressä sijaitsevan kauppakeskus Atomin kanssa laajan liikekeskittymän alueelle. Naapurissa sijaitsevat myös kaupungintalo sekä virastokeskus. Lähitulevaisuudessa Jokikylän asuinalue kehittyy, mikä tuo lisää asukkaita ja elinvoimaa alueelle.
Hausala Oy
Erkkilänkatu 11, 33100 Tampere
Näytä puhelinnumero
050 472 7077
Mika Savikko
Näytä puhelinnumero
050 472 7077
Matti Pöyhiä
Näytä puhelinnumero
040 722 6650
