Vuokrataan varastotilat - Helsinki
Hankasuontie 9, Konala, 00390 Helsinki #10830465
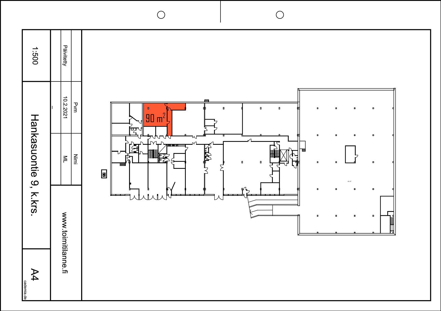
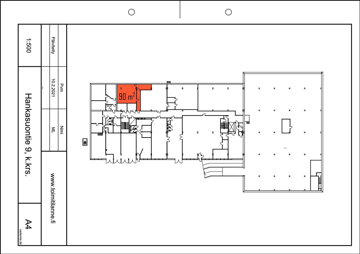
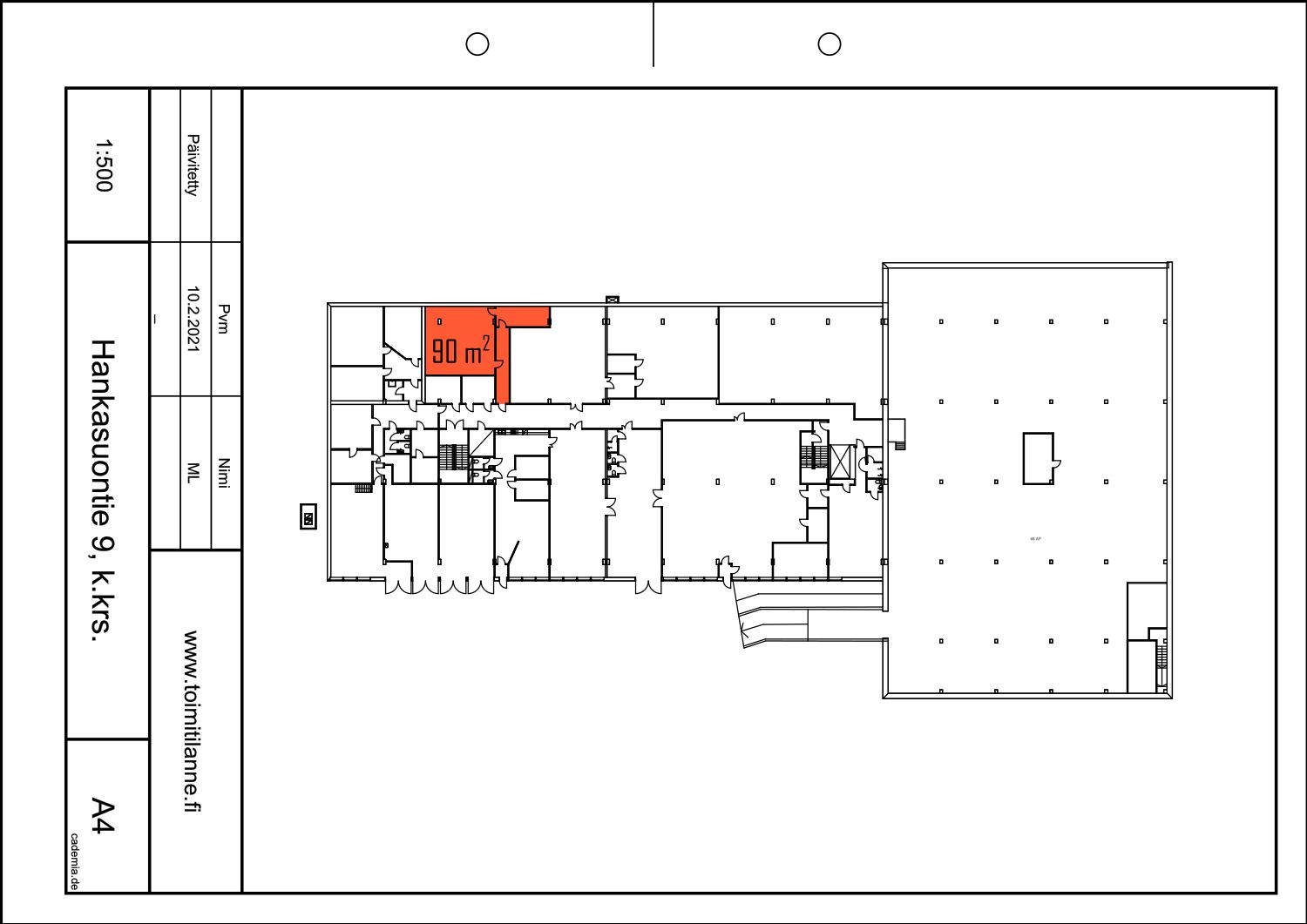
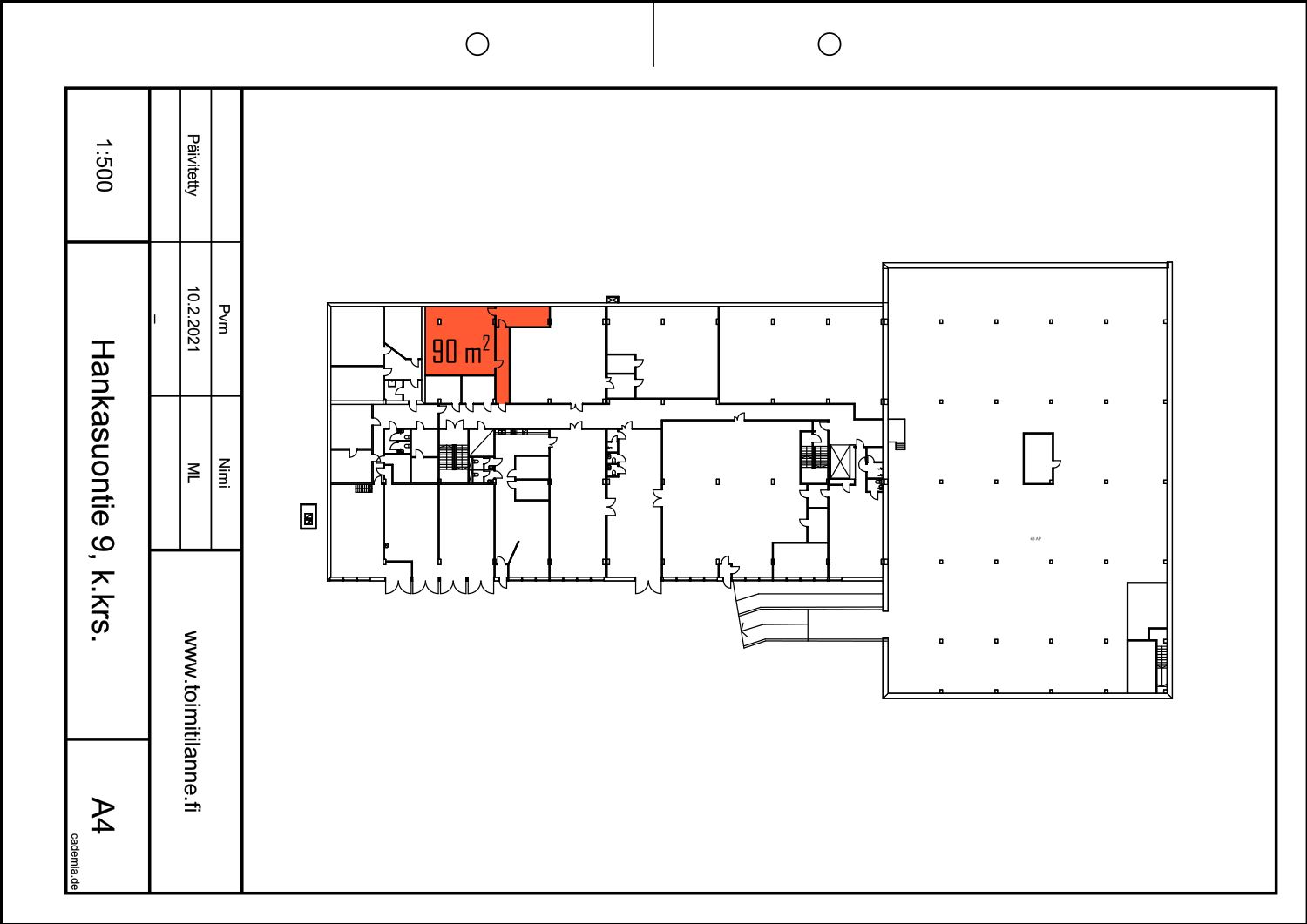
Vuokrataan siisti varastotila rakennuksen alimmasta kerroksesta. Kulku tiloihin mm. lastausaulan kautta. Lisäksi erillinen varastohuone, jonne pääsy suoraan päätilasta tai omassa käytössä olevan käytävän kautta.
Tämä teollisuuskiinteistö on peruskorjattu vuosien 2009 ja 2010 aikana, jolloin uusittiin rakenteiden ja pintojen ohella myös tekniikka. Kohteen tilat soveltuvat mm. metallinkäsittelyyn tai muuhun vastaavaan pienteolliseen toimintaan. Rakennuksessa toimii tällä hetkellä yrityksiä mm. maahantuonnin, tukkukaupan ja kokoonpanon aloilta.
Kohde sijaitsee hyvien kulkuyhteyksien äärellä Vihdintien tuntumassa, Kehä I:n lähellä.
Lisätietoja numerosta 020 7290 710. Lisää kohteita osoitteessa www.premises.fi.
Kohteella ei ole lain edellyttämää energiatodistusta tai energialuokka ei tiedossa.Kerros: kellari
CRE PREMISES
Puh. Näytä puhelinnumero 020 7290 710
Vantaankoskentie 14
01670 VANTAA
