Vuokrataan liiketilat, varastotilat - Helsinki
Eteläranta 14/Unioninkatu 15, Kaartinkaupunki, 00130 Helsinki #10830401
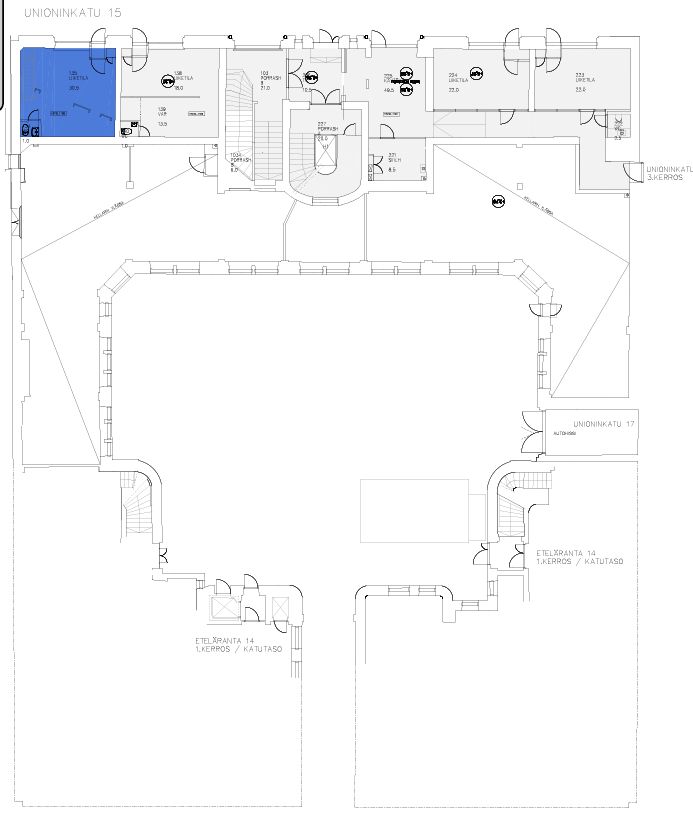
Vuokrattavana katutason siistiä liiketilaa, joka sijaitsee huippupaikalla Kauppatorin laidalla.
Osoite
Eteläranta 14/Unioninkatu 15, 00130 Helsinki
Tilatyyppi
Liiketilaa
32 m2
Varastotilaa
46 m2
Yhteensä
78 m2
Kiinteistö
Vuokrattavana katutason siistiä liiketilaa, joka sijaitsee huippupaikalla Kauppatorin laidalla. Tila koostuu 32 m² liiketilasta sekä 46 m² varastosta, johon yhteys sisärappusilla. Tila ei sovellu ravintolaksi.
Sijainti
Kaartinkaupunki, Helsinki
Pysäköinti
Pysäköintilaitokset ja yrityspysäköintitunnus.
Palvelut
Lähialueen kaikki palvelut ulottuvilla.
Kulkuyhteydet
-Metro
-Bussi
-Raitiovaunu
-Oma auto
-Bussi
-Raitiovaunu
-Oma auto
Vapautuu
Heti
Kerros
1, kellari
Energiatehokkuusluokka
Ei lain edellyttämää energiatodistusta
Katutasossa
Näkyvällä paikalla
Hissi
Ota yhteyttä
REALIUM OY LKV
Tammasaarenkatu 1, 00180 Helsinki
Vaihde:
Näytä puhelinnumero
010 326 346
Tuomo Mäkelä
tuomo.makela@realium.fi
p.
Näytä puhelinnumero
044 050 1158
Joel Keto
joel.keto@realium.fi
p.
Näytä puhelinnumero
045 317 0330
KAIKKI TILAVAIHTOEHDOT KERRALLA!
SOITA - MEILAA JA TILAA NÄYTTÖ!
Ilmainen palvelu tilanhakijoille.
Kartoitamme parhaat tilavaihtoehdot.
Kaikki kohteet eivät ole netissä.
Pyydä lisätietoa
