Vuokrataan toimistotilat - Helsinki
Vuorikatu 16, Keskusta, 00100 Helsinki #10830373
Tyylikäs 237 m² toimisto ydinkeskustassa.
Osoite
Vuorikatu 16, 00100 Helsinki
Tilatyyppi
Toimistotilaa
237 m2
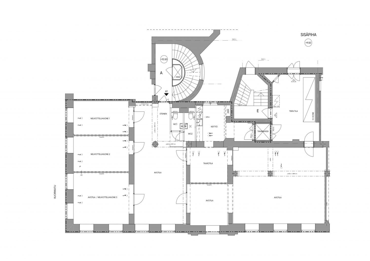
Pohjapiirros
Virtuaaliesittely
Kiinteistö
Modernisoitu erinomaisessa kunnossa oleva tyylikäs toimisto huippusijainnilla.
Toimistosta löytyy kolmen tilavan työ-/neuvotteluhuoneen lisäksi hyvin akustoitua avotilaa, varastohuone, taukotila, keittiö, ja kaksi wc-tilaa.
Huoneisto sijaitsee kiinteistön toisessa kerroksessa, ja pääsisäänkäynti on hissillisen A-portaan kautta. Tilaan on käynti myös sisäpihan kautta.
Ilmanvaihto on koneellinen ja varustettu viilennyksellä.
Toimistosta löytyy kolmen tilavan työ-/neuvotteluhuoneen lisäksi hyvin akustoitua avotilaa, varastohuone, taukotila, keittiö, ja kaksi wc-tilaa.
Huoneisto sijaitsee kiinteistön toisessa kerroksessa, ja pääsisäänkäynti on hissillisen A-portaan kautta. Tilaan on käynti myös sisäpihan kautta.
Ilmanvaihto on koneellinen ja varustettu viilennyksellä.
Vapautuu
Heti
Rakennusvuosi
1928
Kerros
2 / 7
Energiatehokkuusluokka
Ei lain edellyttämää energiatodistusta
Näkyvällä paikalla
Hissi
Ota yhteyttä
ScanReal Oy LKV
Opus Business Park
Hitsaajankatu 24
00810 Helsinki
info@scanreal.fi
Puh:
Näytä puhelinnumero
020 730 8830
Sopivat toimitilat yhdellä otolla!
Kartoitamme toimitilatarpeesi ja etsimme yrityksellesi parhaiten sopivat vapaat toimitilat. Koska vuokranantajat maksavat palvelumme, on tämä yrityksellesi veloituksetonta.
OTA YHTEYTTÄ - SOVI NÄYTTÖ!
Kaikki kohteemme eivät ole netissä, kerro tilatarpeesi niin kartoitamme vaihtoehdot.
Palvelumme on tilanhakijalle ilmainen
Pyydä lisätietoa
