Vuokrataan toimistotilat - Espoo
Keilaranta 6, Keilaniemi, 02150 Espoo #10830332
Tyylikästä ja modernia toimitilaa Keilaniemestä.
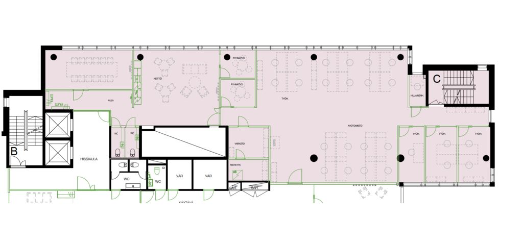
Tämä 334 m² toimistotila sijaitsee kiinteistön 4. kerroksessa. Tila on betonilla eli se rakennetaan vuokralaisen tarpeiden mukaan.
Keilaranta 6 tarjoaa valoisat ja avarat toimitilat, joita voidaan muunnella yrityksen tarpeiden mukaan. Kiinteistössä on jäähdyttävä ilmanvaihto ja nykyaikainen infrastruktuuri. Kiinteistöissä on tarjolla monipuoliset palvelut, kuten kuntosali, spa-osasto, kaksi lounasravintolaa. Nykyaikaiset aulapalvelut, toistakymmentä kokous- ja edustustilaa sekä yli 100:n hengen auditorio. Kiinteistössä on oma pysäköintihalli.
Kysy lisää numerosta 044 723 4700 tai info@bref.fi. Palvelumme on tilanhakijoille ilmainen.
Hissi
Bureau Real Estate Finland Oy
Lars Sonckin kaari 16, 02600 Espoo
Näytä puhelinnumero
0447234700
Bureau Real Estate Finland Oy
https://www.bref.fi