Vuokrataan varastotilat - Järvenpää
Emalikatu 9, 04440 Järvenpää #10830295
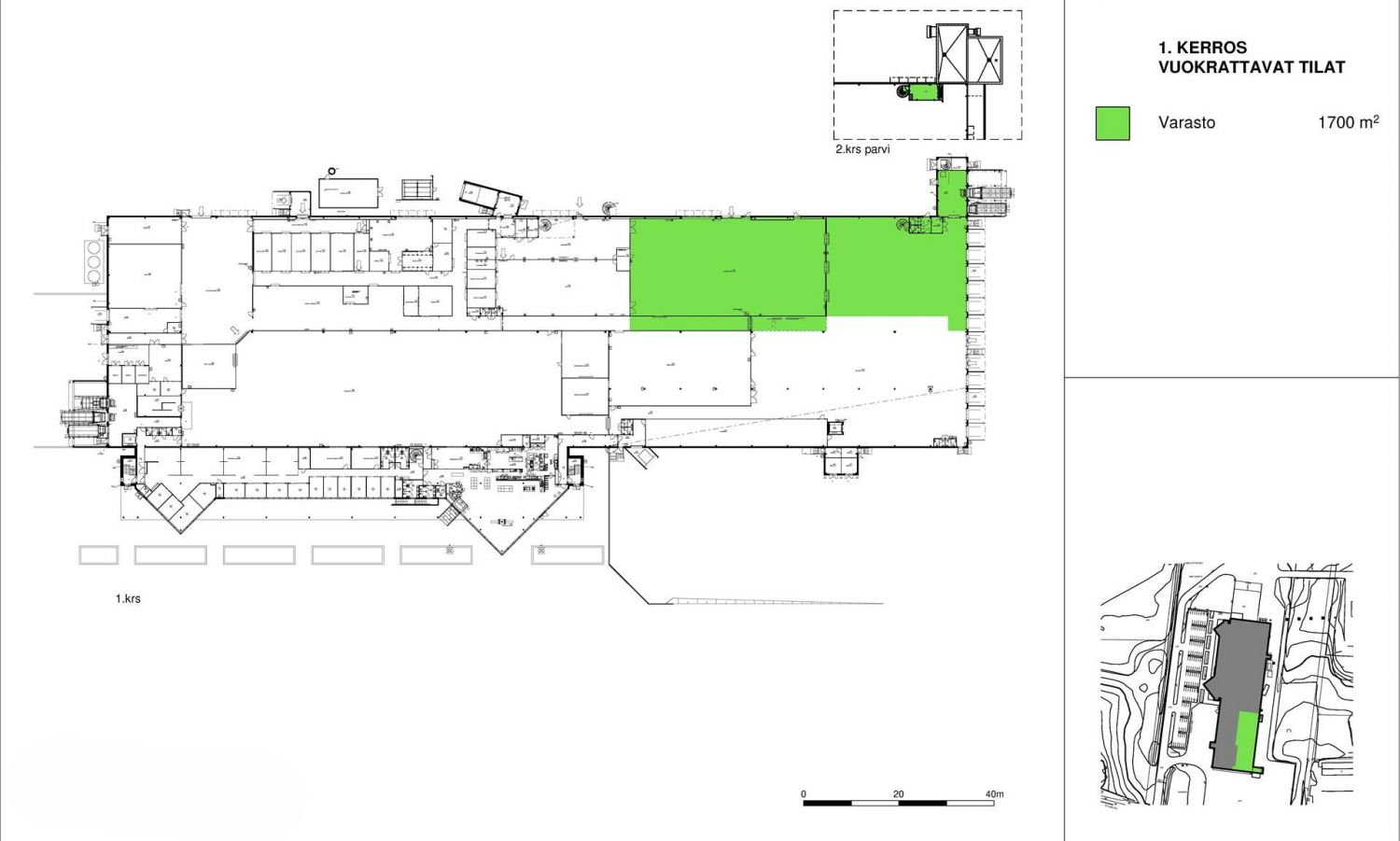
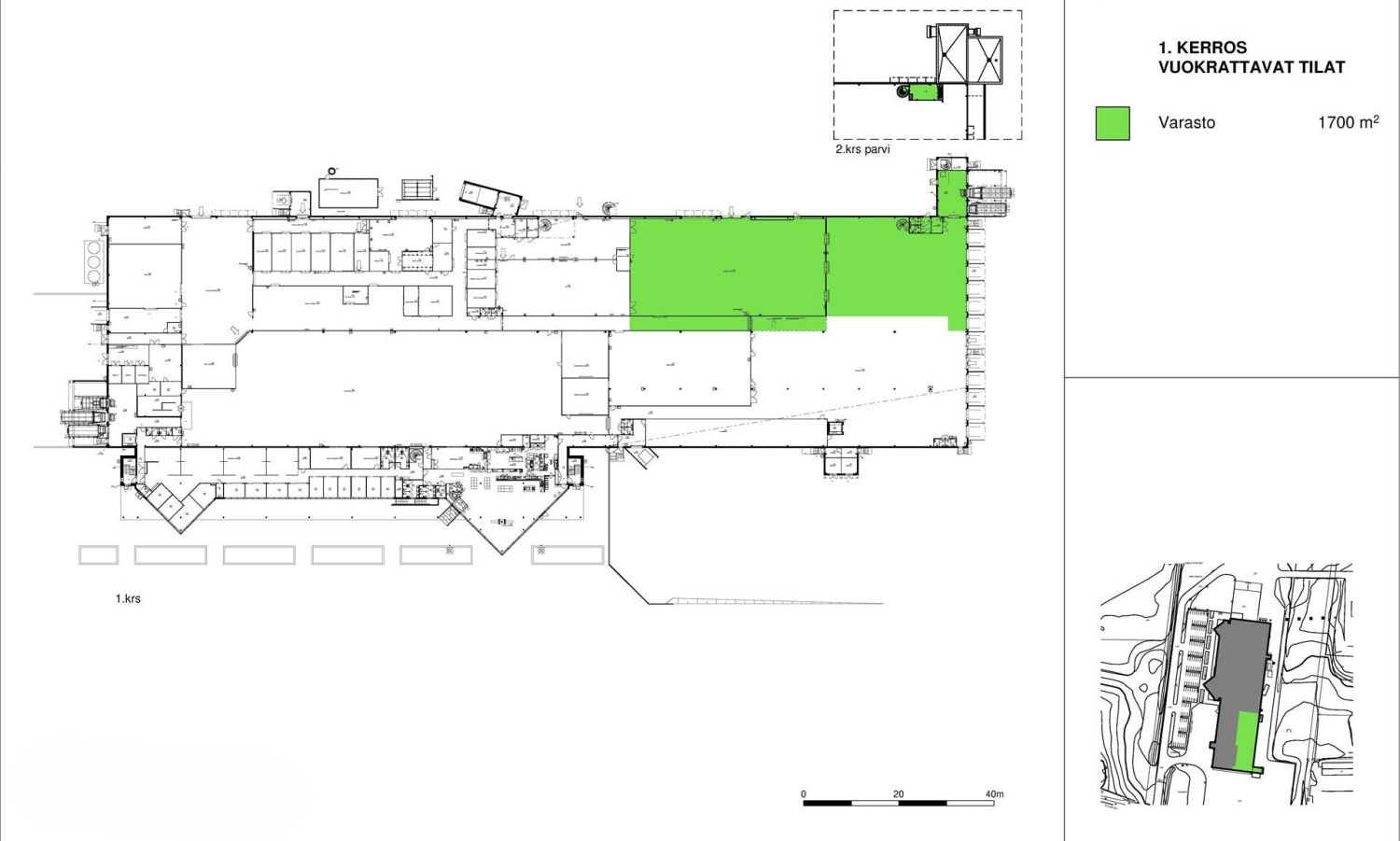
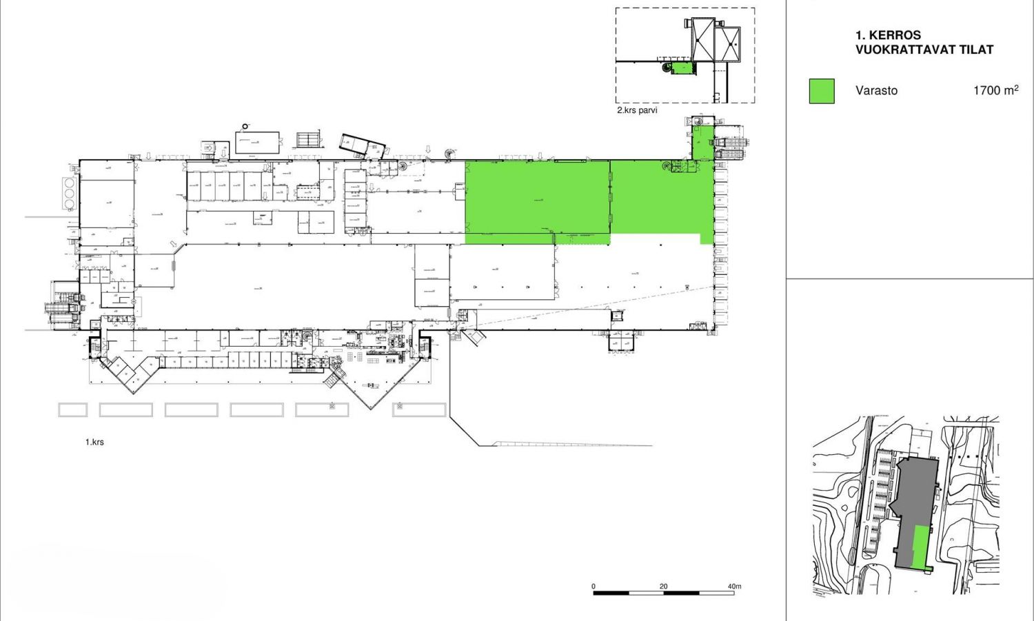
Vuokrattavana 8 m korkeaa varastotilaa, jossa kuusi lastaustaskua ja yksi maantason nosto-ovi.
Tuotanto- ja teollisuuskiinteistö on valmistunut vuonna 2010. Rakennus on suunniteltu uusinta teknologiaa hyödyntäen elintarvike- ja leipomotoiminnan tarpeita varten. Kiinteistön erikoisuutena on mm kylmävarastointitilat. Kiinteistön korkeat varastotilat ovat modernit ja jaettavissa erilaisiin kokonaisuuksiin.
Tavaroiden lastaus- ja purkutoiminnot voidaan hoitaa tehokkaasti lähettämöalueen useilla lastaustaskuilla. Isolla piha-alueella on helppo liikennöidä raskaalla kuljetuskalustolla. Tonttialue on aidattu.
Vuokrattavana ensimmäisen kerroksen vapaata siistiä toimistotilaa 300m2.
Lisätietoja 020 7290 710. Lisää kohteita osoitteessa www.premises.fi.
Kohteella ei ole lain edellyttämää energiatodistusta.
Kohteen omistaa Logicor Oy.Kerros: 1
CRE PREMISES
Puh. Näytä puhelinnumero 020 7290 710
Vantaankoskentie 14
01670 VANTAA
