Vuokrataan toimistotilat - Jyväskylä
Kivääritehtaankatu 6, 40100 Jyväskylä #10830294
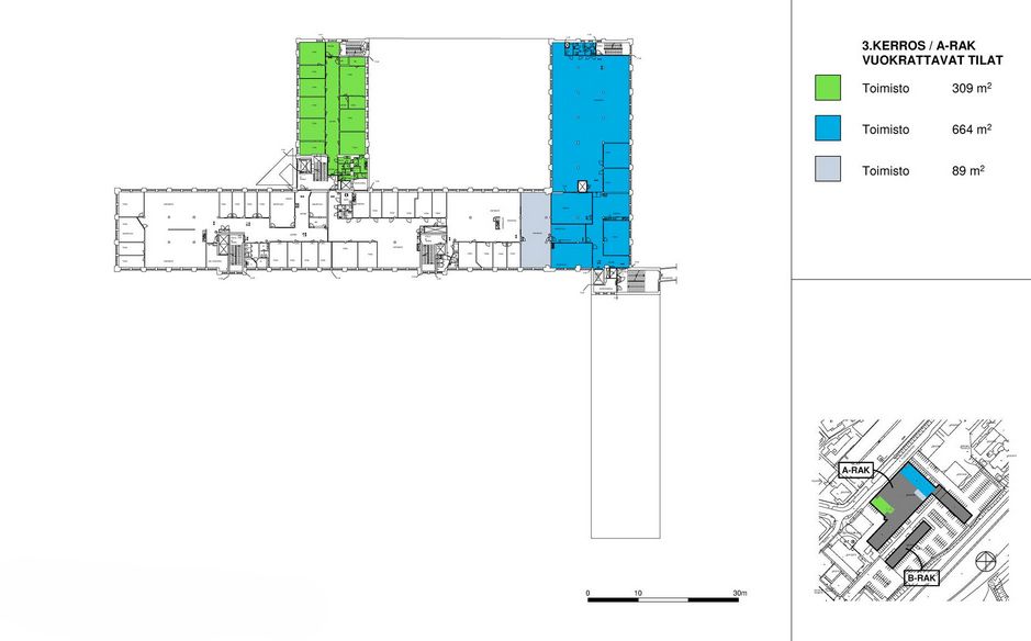
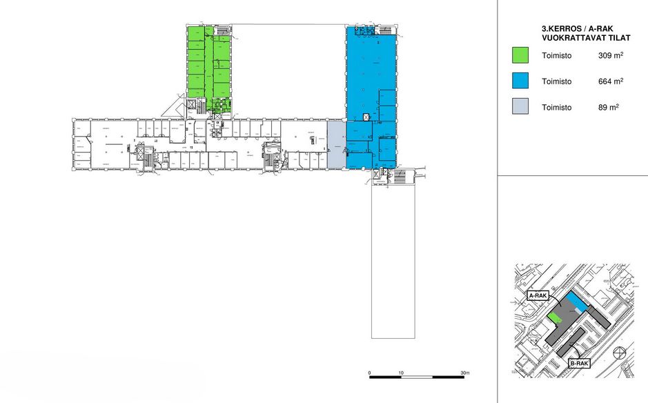
Kivääritehtaassa vuokrattavana toimistotilaa. Tämä laadukas ja jäähdytetty toimistotila sijaitsee kolmannessa kerroksessa ja on 737 m2. Korkea huonekorkeus. Ohessa havainnekuvia kiinteistön tiloista.
Kivääritehdas sijaitsee Tourulassa, nelostien ja Vaajakosken moottoritien kainalossa, vain muutaman minuutin ajomatkan päässä Jyväskylän ydinkeskustasta. Tourulaan on helppo tulla joka puolelta kaupunkia, ja pysäköintitilaa riittää. Tourulasta pääsee nopeasti keskustaan, kauppakeskus Seppään ja Kankaan alueelle.
Tämän kohteen omistaa Logicor Oy.
Lisätietoja 020 7290 710. Lisää kohteita www.premises.fi
Kohteella ei ole lain edellyttämää energiatodistusta tai energialuokka ei tiedossa.Kerros: 3
CRE PREMISES
Puh. Näytä puhelinnumero 020 7290 710
Vantaankoskentie 14
01670 VANTAA
