Vuokrataan toimistotilat - Rovaniemi
Ainonkatu 1, toimisto 47, Ainonkatu 1, 96200 Rovaniemi #10830291
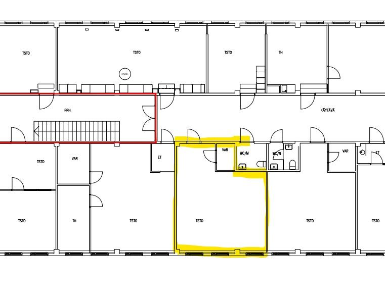
Vuokrataan valoisa toimistotila Rovaniemen keskustasta. Toimisto sijaitsee 3. kerroksessa osoitteessa Ainonkatu 1. Sijainti on lähellä keskustan palveluita ja hyvien kulkuyhteyksien päässä. Toimistossa on yksi iso huone ja pieni varasto. Ota yhteyttä ja kysy lisää!
Näkyvällä paikalla
Hissi
Rovaseudun Markkinakiinteistöt Oy
Puhelin: Näytä puhelinnumero 020 152 5090
Rovaseudun Markkinakiinteistöt Oy kehittää Rovaniemen kaupungin elinvoimaa tarjoamalla alueen yrityksille monipuolisen valikoiman toimi- ja tuotantotiloja. Toimitilavuokrauksen lisäksi vuokraamme myös tapahtuma-alueita. Lordin aukio ja kauppatori ovat kaupungin suosituimpia tapahtumapaikkoja.
https://www.rovaseudunmarkkinakiinteistot.fi/